Vandaag bereikbaar van 09:00 tot 12:00
Koopwoningen

Ontdek jouw droomwoning

Omschrijving

In een rustige woonstraat ‘op Budschop’ bieden wij te koop aan deze royale, vrijstaande woning, aan de achterzijde uitgebouwd met een tuin-/eetkamer met open keuken en een royale inpandig bereikbare garage van ca. 9 bij 4 meter.
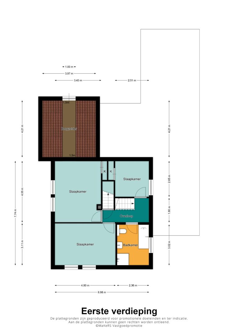
Op de verdieping bevinden zich 3 ruime slaapkamers, een moderne, complete badkamer en een vaste trap naar de zolder.
De woning heeft een woonoppervlak van 142m2 en is gelegen op een perceel van 362 m2 met een op het zuidoosten georiënteerde, onderhoudsarme achtertuin.

Deze oorspronkelijk in 1979 gebouwde woning is bij de bouw voorzien van dak-, spouwmuur- & vloerisolatie en hardhouten kozijnen. De begane grond is voorzien dubbel of HR-glas en grotendeels een tegelvloer met vloerverwarming. Verwarming van de woning middels een nieuwe cv-combiketel (Itho Daalderop – 2022), warmwater in keuken via boiler. In 2022 zijn er 12 zonnepanelen geplaatst. 

De belangrijkste kenmerken in één oogopslag:
– royale vrijstaande woning met 142m2 woonoppervlak
– aangebouwde tuin-/eetkamer met open keuken (2008) voorzien van alle apparatuur
– 3 ruime slaapkamers
– moderne, complete badkamer (2018)
– inpandige garage (ca. 35m2) met dak en muurisolatie
– energielabel C (de zonnepanelen zijn hier niet in meegenomen)
– totale inhoud 800 m3
– perceel 362 m2

Kortom, een royale vrijstaande gezinswoning met een grote inpandige bereikbare en voor diverse doeleinden geschikte garage.

Indeling

Begane grond:
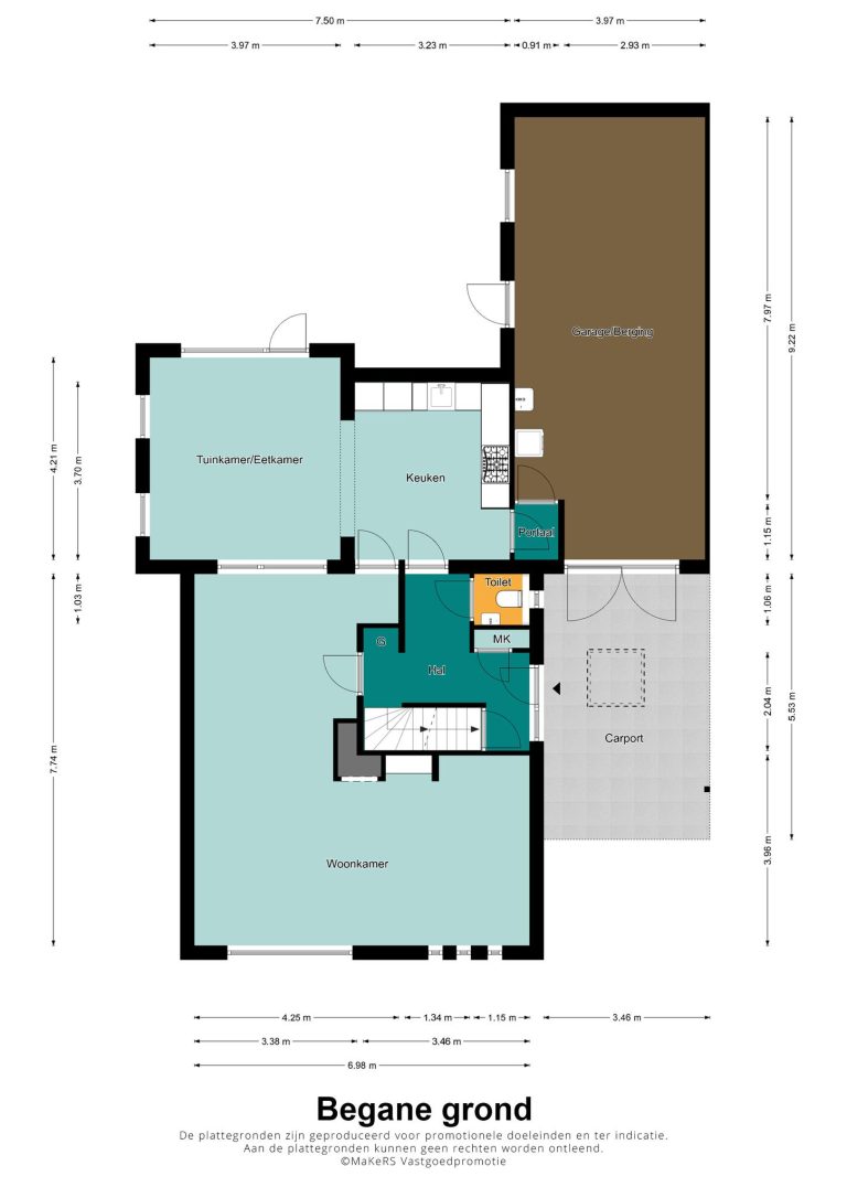
Via de oprit met carport bereikt u de in de zijgevel gelegen entree.
Ontvangsthal met meterkast, deur naar provisiekelder en geheel betegelde toiletruimte voorzien van hangend toilet, fonteintje en vloerverwarming. Vanuit de hal toegang tot de woonkamer en de aangebouwde keuken met tuin-/eetkamer.
De L-vormige woonkamer (groot ca. 42m2) is gelegen aan de voorzijde van de woning. De woonkamer is voorzien van tegelvloer met vloerverwarming en een sfeervolle gashaard. De keuken en tuin-/eetkamer zijn aan de achterzijde aangebouwd en eveneens voorzien van tegelvloer met vloerverwarming. De keuken is in 2012 voorzien van een nieuwe hoekopgestelde keukenopstand met gaskookplaat, afzuigkap, combi oven-magnetron, koelkast, granieten werkblad en voldoende bergruimte. De tuin-/eetkamer staat in open verbinding met de keuken. Deze tuinkamer heeft veel lichtinval door de grote raampartijen met uitzicht op de tuin.
De royale inpandige garage (ca. 9 bij 4m) is bereikbaar via een tussenportaal, grenzend aan de keuken. Deze garage is voorzien van tegelvloer, dak- en muurisolatie, verwarming en dubbele openslaande deuren naar de oprit met carport. 

1e verdieping:
Vanuit de overloop zijn de 3 slaapkamers en de badkamer bereikbaar. Twee slaapkamers zijn royaal met afmetingen van resp. 4,5 bij 3,10m en 4,55 bij 3,40m. De geheel in moderne kleurstelling betegelde badkamer is in 2018 modern verbouwd en voorzien van ligbad, inloopdouche, badkamermeubel, toilet en designradiator. 
De boven de tuin-/eetkamer gelegen bergruimte is bereikbaar via de buitenzijde / achtertuin.

2e verdieping:
Via vaste trap bereikbare zolderverdieping. Hier bevinden zich een bergzolder en cv-ruimte. De derde ruimte, groot ca. 3 bij 2,90m, is na het plaatsen van een dakraam evt. te gebruiken als hobbyruimte, muziek- of werkkamer.

Tuin:
De op het zuidoosten gelegen achtertuin is onderhoudsarm aangelegd, grotendeels betegeld, en voorzien van eveneens onderhoudsarme borders. Links naast de woning bevindt zich een achterom naar de achtertuin.

Over Nederweert en omgeving 
De woning is gelegen in een verkeersluwe straat, in een rustige woonwijk van Nederweert. In de directe omgeving zijn een basisschool, zwembad, fitness en speelvoorzieningen te vinden. 
Het centrum van Nederweert met gezellige restaurants en cafés ligt op korte loop-/fietsafstand. Hier vindt u ook een ruime keuze aan supermarkten en winkels. 
In de landelijke omgeving van Nederweert kunt u heerlijk wandelen en fietsen. Binnen 10 autominuten staat u aan de rand van het uitgestrekte natuurgebied ‘Nationaal Park De Groote Peel’ of ‘Sarsven – De Banen’. De op- en afrit van de A2 richting Eindhoven en Maastricht is binnen 5 minuten te bereiken, net als verbindingswegen richting Helmond, Venlo en Roermond.

Kenmerken

  • Woonoppervlakte 142 m2
  • Perceeloppervlakte 362 m2
  • Slaapkamers 3 kamers
  • Bouwjaar 1979
  • Energielabel C

Streetview

Street View preview
Klik om Street View te laden
Met koffie!

Kennismaken? Altijd gratis!

  • Wij gaan kijken of er een klik is, wel zo belangrijk!
  • Wij gaan kijken hoe we je het beste kunnen helpen.
  • Is alles duidelijk? Dan gaan wij voor jou aan de slag.

Vragen over onze mogelijkheden?

Loop even binnen of neem contact met ons op. Je kunt ook het contactformulier invullen, dan nemen wij zo snel mogelijk contact met jou op.

Vandaag bereikbaar van 09:00 tot 12:00

"*" geeft vereiste velden aan

Dit veld is bedoeld voor validatiedoeleinden en moet niet worden gewijzigd.