Vanaf maandag 08:30 zijn we weer bereikbaar
Koopwoningen

Ontdek jouw droomwoning

Omschrijving

Te koop: Charmante Langgevel Woonboerderij in Ospel – Onze Lieve Vrouwestraat 37-39

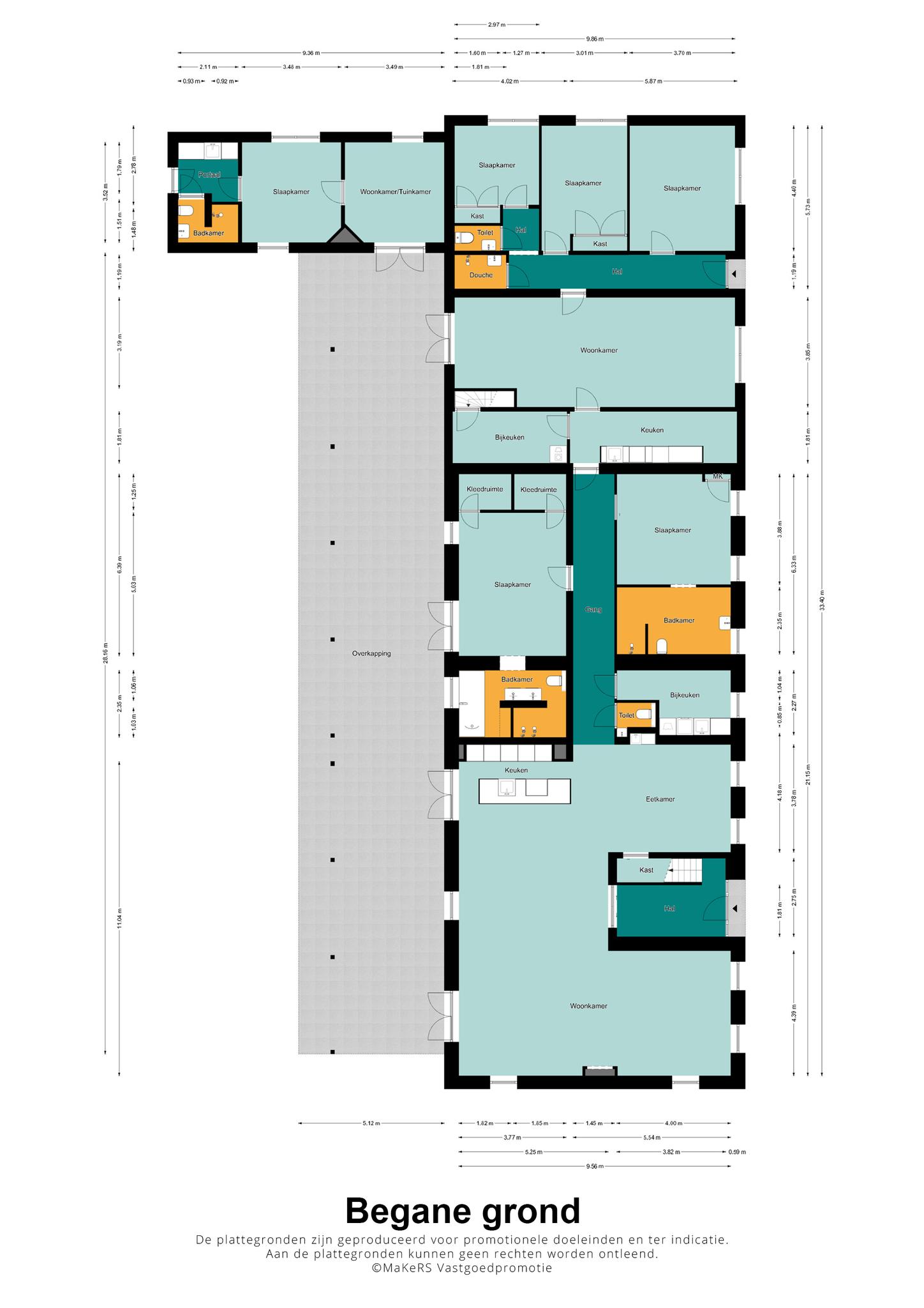
Welkom bij deze prachtige langgevel woonboerderij, gelegen aan de doorgaande weg in het pittoreske dorp Ospel. Deze unieke woning is volledig gerenoveerd en biedt een perfecte combinatie van historische charme en moderne gemakken. De woning is voorzien van hoogwaardige isolatie waarmee ruimschoots voldaan wordt aan de eisen en normen van deze tijd. Met een gebruiksoppervlakte van circa 700m², waarvan 530m² aan woonoppervlakte, biedt deze woning tal van gebruiksmogelijkheden. Deze woning is voorzien van 8 ruime slaapkamers, een zeer grote woonkamer met leefkeuken, 5 badkamers en een uniek vrij uitzicht aan de achterzijde van de woning. Ideaal voor grote (samengestelde) gezinnen en met de mogelijkheid voor een mantelzorgwoning met huisnummer 39, of zelfs een Bed & Breakfast of kantoor/praktijk aan huis.

Tijdens de verbouwing is er niet alleen aandacht besteed aan het gebruik van hedendaagse materialen en het behouden van de originele constructieve details, ook is er gelet op het realiseren van een aangenaam wooncomfort. Zo is er onder andere vloerverwarming aangelegd, zijn de vloeren, de wanden en het dak geïsoleerd en zijn er nieuwe hardhouten kozijnen geplaatst met HR++ beglazing. Het gerenoveerde woongedeelte met huisnummer 37 heeft een energielabel A, voor het gedeelte wat nog niet is gerenoveerd (met huisnummer 39) is een label G afgegeven. Het is tevens mogelijk dit gedeelte om te bouwen tot dubbele garage. Vergunning hiervoor is aanwezig.

Bent u op zoek naar ruimte en hedendaags wooncomfort? Dan nodig ik u van harte uit voor een bezichtiging! Laat u verrassen door de diverse mogelijkheden die deze woning te bieden heeft.

Locatie:
Deze fraaie Limburgse langgevelboerderij is gelegen in de dorpskern van Ospel, een idyllische en rustige locatie die toch dicht bij alles ligt wat u nodig heeft. Ospel, gelegen in het midden van Limburg, is omgeven door natuur en ligt tussen de dorpen Nederweert en Meijel. Met het mooie Nationaal Park “De Groote Peel” in de nabije omgeving en steden als Weert op 10 minuten afstand, Roermond en Eindhoven binnen 20 minuten rijden, heeft u het beste van beide werelden: privacy en toegang tot alle voorzieningen. De dorpskern van Ospel biedt onder andere een supermarkt, bakker, slager en basisschool, terwijl de nabijgelegen steden een compleet aanbod van winkels, restaurants en culturele activiteiten bieden.

Indeling woning: Bij binnenkomst in de hal wordt u meteen verwelkomd door de warme ambiance van deze woning. Via de prachtige schuifdeuren met glas-in-loodramen komt u direct in de ruime woonkamer (120m²), waar u kunt genieten van de gezellige gashaard met afstandsbediening en het uitzicht op de tuin.
De open keuken is een waar paradijs voor kookliefhebbers, met een prachtig kookeiland voorzien van een intelligente inductiekookplaat en intelligente afzuigkap van Studio-line Siemens.
De wand met keukenkasten is ingebouwd en voorzien van Studio-line Siemens apparatuur zoals een combi-stoomoven, en twee combi-magnetronovens, inbouw vaatwasser en ruime inbouwkoelkast van Liebher. Het kookeiland is voorzien van ladekasten wat veel bergruimte biedt.
Het eetgedeelte is voorzien van een ingebouwde koffiecorner voorzien van een design spoelbak met warm/koud waterkraan en lades. De inbouwkasten in de keuken zijn voorzien van professionele omlijste ledverlichting welke het geheel een mooie ambiance geeft.
De woning is voorzien van een professionele videofooninstallatie met digitaal touchscreen beeldscherm welke aanwezig is in het eetgedeelte en ook te koppelen is aan een mobiele telefoon.
Vanuit het leefgedeelte loopt u via de centrale gang naar de diverse vertrekken. Deze gang is voorzien van volledig geautomatiseerde wandstrike- en hoofdverlichting. Aan het begin van de gang bevindt zich een luxe toiletruimte met hangtoilet en toiletmeubel voorzien van mengkraan en automatische verlichting.
Naast het toilet ligt een ruime bijkeuken met werkblad, opbergkasten en een wasbak met design zwarte mengkraan. Er zijn twee wasmachineaansluitingen en een aansluiting voor een wasdroger. Deze ruimte is voorzien van automatische verlichting en een elektrisch rolgordijn aan de binnenzijde.

Op de begane grond bevinden zich twee ruime slaapkamers. De masterbedroom (25m²) aan de achterzijde van de woning heeft directe toegang tot een geheel betegelde badkamer (8m²), die is voorzien van een ruim bad, toilet, dubbele wastafel en een heerlijke inloopdouche met twee regendouches (Grohe comfort druktoetsfunctie bedieningspaneel) en een handdouche. De slaapkamer is voorzien van twee inloopkasten en slimme automatische wandverlichting. Vanuit de masterbedroom loopt u via de openslaande tuindeuren zo het eigen overdekte terras op met een Douglashouten vlondervloer, waar u kunt genieten van een uniek vrij uitzicht.
De tweede slaapkamer (20m²) aan de voorzijde heeft een eigen gedeeltelijk betegelde badkamer (8m²) met inloopdouche en toilet. De kamer is voorzien van een inkomschuifdeur wat deze kamer geschikt maakt voor mindervaliden. De ramen van deze kamer en badkamer zijn voorzien van elektrische rolgordijnen aan de binnenzijde.
De gehele benedenverdieping is drempelvrij en daardoor ook zeer geschikt voor mindervaliden
Alle ruimten zijn voorzien van een prachtige houtlook keramische tegel die niet van een houten vloer te onderscheiden is. De wanden en plafonds zijn strak afgewerkt en voorzien van inbouwspots

Vanuit de centrale gang is er tevens toegang tot de bestaande ‘oude’ boerderijwoning

Op de eerste verdieping vindt u vier ruime slaapkamers, een werkkamer die ook als slaapkamer te gebruiken is, een toilet en twee doucheruimtes. Alle slaapkamers zijn voorzien van de prachtige originele spanten. Alle kamers zijn voorzien van laminaat en inbouwspots. De verkeersruimtes zijn voorzien van geautomatiseerde verlichting
• Slaapkamer 1 linksvoor is een ruime kamer (32m²) en voorzien van een dakkapel en een raam aan de zijkant.
• Slaapkamer 2 linksachter is een ruime kamer (35m²) en voorzien van een raam aan de zijkant.
• Slaapkamer 3 middenvoor is een ruime kamer (23m²) en voorzien van een dakkapel en bergruimte (5m²).
• Slaapkamer 4 rechtsvoor is een ruime kamer (27m²) en voorzien van een dakkapel.
• De werkkamer (26m²) rechtsachter is voorzien van twee dakramen en een keukenblok. Deze kamer is ook te gebruiken als slaapkamer.
• Aparte toiletruimte met fonteintje.
• Twee badkamers voorzien van een douchecabine en wastafel met spiegel.
• Daarnaast is er nog een zeer ruime bergzolder (120m²) boven de ‘oude’ boerderijwoning
• Bergruimte met CV-ruimte.

Op de tweede verdieping bevindt zich de zolder (145m²) welke u via de vaste trap bereikt, geschikt als opbergruimte

Oorspronkelijk boerderijwoning
De oorspronkelijk boerderijwoning is nog intact en er is een vergunning aanwezig om deze ruimte om te toveren tot een dubbele inpandige garage.

Appartement/Mantelzorgwoning
Daarnaast is er nog een gerenoveerd appartement met eigen huisnummer (nummer 39), bestaande uit een leefruimte, slaapkamer, keukentje met keukenblok en een badkamer voorzien van een inloopdouche, wastafel en toilet. Dit appartement biedt de perfecte mogelijkheid voor een mantelzorgwoning of een Bed & Breakfast.

Buitenruimte
De gehele achterzijde van de woning is voorzien van een overkapping (145m²), waar u heerlijk kunt ontspannen.
De tuin is omheind met hekwerk met indirecte ledverlichting en voorzien van gras, met een vrij uitzicht op het achterliggend landschap. In de hoek van de tuin staat een tuinhuis voorzien van een hydrofoor pompinstallatie en waterput. De tuin is voorzien van een sproei installatie.

Technische aspecten:
– Bouwaard: traditioneel/systeembouw (binnenwanden)
– Type dak: zadeldak/plat dak
– Dakbedekking: keramische dakpan/bitumineuze dakbedekking (2021)
– Isolatie: dak (steenwol/nieuwe gedeelte)/vloer (PIR-plaat/nieuwe gedeelte)/wanden (steenwol/nieuw gedeelte)/beglazing (HR++-beglazing/nieuwe gedeelte)
– Kozijnen: hout (Meranti/nieuwe gedeelte)
– Centrale verwarming: ja (m.b.v. gasgestookte cv-ketel/jaartal 2021
– Warm watervoorziening: combi cv-ketel
– Extra voorzieningen: mechanische ventilatie/vloerverwarming (begane grond/nieuwe gedeelte)
– Bijzonderheden: de vrijstaande schuur wordt nog gesloopt door de huidige eigenaren/de bestaande ‘oude’ woning dient getransformeerd te worden naar een dubbele, inpandige garage (bouwtekeningen aanwezig)
– huisnummer 37 heeft energielabel A, huisnummer 39 (nog niet gerenoveerd/om te bouwen tot dubbele garage) heeft energielabel G

Deze woonboerderij biedt de perfecte combinatie van historische charme en moderne gemakken. Kom langs en ervaar zelf de unieke sfeer van deze bijzondere woning.

Kenmerken

  • Woonoppervlakte 533 m2
  • Perceeloppervlakte 1508 m2
  • Slaapkamers 11 kamers
  • Bouwjaar 1907
  • Energielabel A
Met koffie!

Kennismaken? Altijd gratis!

  • Wij gaan kijken of er een klik is, wel zo belangrijk!
  • Wij gaan kijken hoe we je het beste kunnen helpen.
  • Is alles duidelijk? Dan gaan wij voor jou aan de slag.

Vragen over onze mogelijkheden?

Loop even binnen of neem contact met ons op. Je kunt ook het contactformulier invullen, dan nemen wij zo snel mogelijk contact met jou op.

Vanaf maandag 08:30 zijn we weer bereikbaar

"*" geeft vereiste velden aan

Dit veld is bedoeld voor validatiedoeleinden en moet niet worden gewijzigd.