Vandaag bereikbaar van 09:00 tot 12:00
Koopwoningen

Ontdek jouw droomwoning

Omschrijving

In het buitengebied van Nederweert (buurtschap ‘Schoor’) bieden wij te koop aan deze modern verbouwde, vrijstaande woning met groot vrijstaand bijgebouw (garage), gelegen op een royaal privacybiedende perceel van maar liefst 1.314m2 en vrij uitzicht aan de voorzijde.

Op de begane grond heeft de woning een sfeervolle woonkamer met aangebouwde leefkeuken voorzien van luxe keuken met kookeiland, moderne badkamer, kantoor/hobby/slaapkamer en op de verdieping 3 ruime slaapkamers. 
Het royale vrijstaande bijgebouw (ca. 11 x 6,5m) is opgesplitst in een dubbele garage aan de voorzijde en aan de achterzijde een multifunctionele ruimte met keukenblok voorzien van boiler en toiletruimte, te gebruiken als mancave, chillruimte, kantoor-/werk- of hobbyruimte.

Deze oorspronkelijk in de jaren ’60 gebouwde woning is door de huidige eigenaren de afgelopen 10 jaar op vele onderdelen verbouwd en gemoderniseerd. Daarbij is de indeling van de woning gewijzigd en is de woning grotendeels gemoderniseerd en onder andere voorzien van een nieuwe luxe keuken (2023) met kookeiland, moderne badkamer (2014), toiletruimte en nieuwe wand- en vloerafwerking en getransformeerd tot de huidige sfeervolle gezinswoning!
De woning is voorzien van kunststof en houten kozijnen met dubbel/HR-glas, een Remeha cv-combiketel (2018), 26 zonepanelen (2018 / 2023), dakisolatie, grotendeels vloerisolatie en deels muurisolatie (aanbouw keuken en vrijstaand bijgebouw) en diverse airco’s op begane grond en verdieping, hetgeen resulteert in een definitief energielabel B.

Algemene kenmerken:
– woonoppervlak 189m2 (incl. 29m2 in het bijgebouw)
– mogelijkheid om levensloopbestendig te wonen
– diepe achtertuin ca 50 x 15m
– dubbele geïsoleerde garage; ca. 6.4m x 6.5m
– multifunctionele ruimte; ca. 6,4 bij 4.25m
- pvc- of tegelvloer met vloerverwarming op begane grond (behalve kantoorruimte)
– 26 zonnepanelen
- perceeloppervlak 1.314m2
– energielabel B.

Indeling

Begane grond
Via de centraal in de voorgevel gelegen entree betreedt u de woning.
Het eerste gedeelte van de hal biedt toegang tot de provisiekelder en de aan de linkerzijde van de woning gelegen kantoorruimte (ca 3.8 bij 3.1m). Deze kantoorruimte is voorzien van een laminaatvloer en vaste (muur-)kasten. Deze ruimte is ook uitermate geschikt als speelkamer, voor beroep-aan-huis, maar ook het gebruik als slaapkamer is een optie waardoor deze woning de mogelijkheid biedt om levensloopbestendig te wonen !
Als u de hal door loopt komt u in de ruime centrale hal met meterkast, garderobe en trap naar de verdieping. Vanuit deze centrale hal zijn de badkamer, het gastentoilet en de woonkamer bereikbaar. De luxe, moderne badkamer is gedeeltelijk betegeld, voorzien van badkamermeubel met 2 waskommen en spiegel met ingebouwde verlichting, ligbad, inloopdouche met regendouche en hangend toilet. De toiletruimte is geheel betegeld en voorzien van hangend toilet met inbouwreservoir en fonteintje.
De woonkamer (ca. 3.4 bij 8m) is gelegen aan de rechterzijde van de woning en heeft diverse raampartijen aan voorzijde en zijkant. De woonkamer staat in open verbinding met de aan de achterzijde aangebouwde eetkeuken (ca. 6.65 bij 3.45m). Het kookeiland vormt het centrale middelpunt van deze prachtige keuken. De luxe keuken is voorzien van alle apparatuur zoals; inductiekookplaat met geïntegreerde afzuiging, vaatwasser, koelkast, diepvries, stoomoven en een ‘Dekton’ – werkblad (‘Dekton’ is een mengsel van glas, porselein en kwarts)>
De 2 kastenwanden zorgen voor de extra bergruimte. Vanuit de  keuken heeft u via de grote dubbele schuifpui een heerlijk uitzicht op de tuin,
Aansluitend de bijkeuken met kastenwand voorzien van aansluiting voor wasmachine en droger, 2e keukenblok, bergkast voor de Remeha cv-combiketel (2018) en deur naar achtertuin.

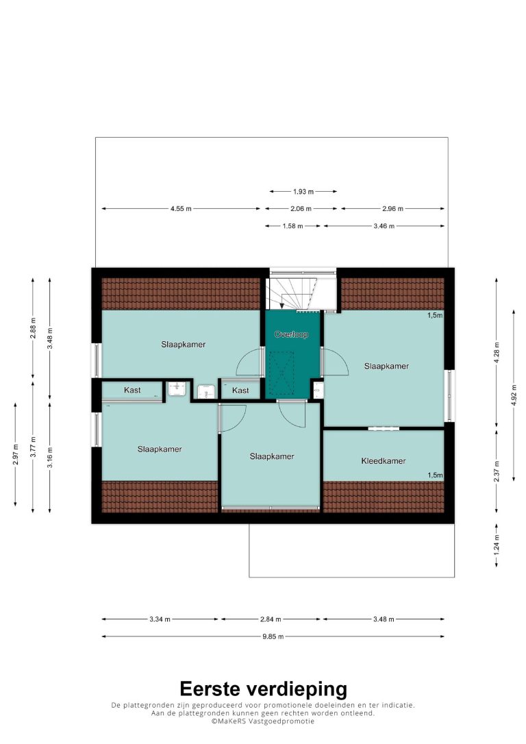
1e verdieping
Overloop met grote dakkapel aan de achterzijde. Vanuit de overloop zijn de ouderslaapkamer, kinderkamer 1 en kinderkamer 2 bereikbaar. De ouderslaapkamer met aansluitende kleedkamer is gelegen aan de rechterzijde van de woning. Kinderkamer 1 is gelegen aan de achterzijde van de woning en heeft een wastafel. Kinderkamer 2 met dakkapel ligt centraal aan de voorzijde. Via deze kamer is de potentiële 3e slaapkamer met wastafel bereikbaar.   

2e verdieping
De bergzolder is bereikbaar middels een vlizotrap op de overloop.

Vrijstaande dubbele garage – Multifunctionele ruimte
Het royale bijgebouw (ca. 10.8 bij 6.4m) is voorzien van spouwmuurisolatie en geïsoleerde dakplaten. Dit bijgebouw is opgesplitst in een garage en een multifunctionele ruimte. Via een entree in de zijkant betreedt u de hal. Deze hal geeft enerzijds toegang tot de aan de voorzijde gelegen royale garage/hobbyruimte (ca. 6.5 bij 6,4 m) met dubbel elektrische sectionaalpoort naar de royale oprit waar makkelijk 5 auto’s kunnen staan.
Aan de achterzijde bevindt zich de multifunctionele ruimte (ca. 6,4 bij 4.25m) Deze ruimte is geheel afgewerkt en voorzien van keukenblok met boiler, separate toiletruimte en schuifpui naar de tuin. Deze ruimte is voor vele doeleinden geschikt. Denk aan beroep-aan-huis, mancave of chillruimte voor de kinderen, maar ook voor logés is het hier prima toeven.

Tuin
De voortuin is aangelegd met hagen, perken en volwassen beplanting. Aan de rechterzijde van de woning bevindt zich een royale beklinkerde oprit met oplaadpunt elektrische auto (ter overname) en hekwerk aan de voorzijde. De ca. 50m diepe, privacybiedende achtertuin is gelegen op het noorden en aangelegd met groot gazon en terrassen. Deze achtertuin biedt legio mogelijkheden o.a. om te genieten van de zon, voor de kinderen om te ravotten, maar ook het houden van dieren / kleinvee behoort tot de mogelijkheden.

Kortom; bent u op zoek naar een sfeervolle gezinswoning die van alle gemakken is voorzien en daarnaast beschikt over een groot multifunctioneel bijgebouw en dan ook nog gelegen op een ruim perceel met privacy? Dan is deze woning een bezichtiging zeker waard !

Kenmerken

  • Woonoppervlakte 189 m2
  • Perceeloppervlakte 1314 m2
  • Slaapkamers 4 kamers
  • Bouwjaar 1963
  • Energielabel B

Streetview

Street View preview
Klik om Street View te laden
Met koffie!

Kennismaken? Altijd gratis!

  • Wij gaan kijken of er een klik is, wel zo belangrijk!
  • Wij gaan kijken hoe we je het beste kunnen helpen.
  • Is alles duidelijk? Dan gaan wij voor jou aan de slag.

Vragen over onze mogelijkheden?

Loop even binnen of neem contact met ons op. Je kunt ook het contactformulier invullen, dan nemen wij zo snel mogelijk contact met jou op.

Vandaag bereikbaar van 09:00 tot 12:00

"*" geeft vereiste velden aan

Dit veld is bedoeld voor validatiedoeleinden en moet niet worden gewijzigd.