Vandaag bereikbaar van 09:00 tot 12:00
Koopwoningen

Ontdek jouw droomwoning

Omschrijving

Op een centrale locatie met alle voorzieningen om de hoek, bieden wij te koop aan deze vrijstaande kluswoning, gelegen op een royaal perceel van 533m2.

Deze origineel eind jaren ’50 gebouwde woning en in 1976 voorzien van een aanbouw aan de woonkamer, heeft op dit moment een woonoppervlak van ca. 121m2.
Op de begane grond bevindt zich naast de aangebouwde woonkamer o.a. een gesloten keuken en een badkamer en op de verdieping 4 slaapkamers.
De woning heeft geen isolatievoorzieningen en dient geheel te worden gemoderniseerd.
De royale achtertuin is gelegen op het westen en is aan de achterzijde bereikbaar vanuit de St. Luciastraat.

Deze woning biedt voldoende ruimte en mogelijkheden, maar dient op het gebied van isolatie en afwerking wel nog geheel te worden gemoderniseerd.

Kortom een ideale woning voor iemand die graag de handen uit de mouwen steekt en de woning geheel naar eigen wens en smaak wil afwerken !

Indeling

Begane grond:
Entree gelegen in de voorgevel van de woning. Ontvangsthal met meterkast, toegang tot de provisiekelder en trap naar 1e verdieping.
Deur naar de eetkamer aan de straatzijde, in open verbinding doorlopende naar de uitgebouwde woonkamer aan de achterzijde. De eet-/woonkamer met uitbouw heeft een oppervlakte van ca. 42m2 en heeft aan de voorzijde een grote raampartij en aan achterzijde een groot raam met loopdeur naar de tuin. Vanuit de aanbouw een deur naar de keuken. Deze keuken is voorzien van een eenvoudige opstand met gaskookplaat en afzuigkap.
Aansluitend de bijkeuken met opstelling Nefit Ecomline combi cv-ketel, deur naar badkamer en deur naar tuin. De eenvoudige badkamer is betegeld en voorzien van ligbad, douche en wastafel.

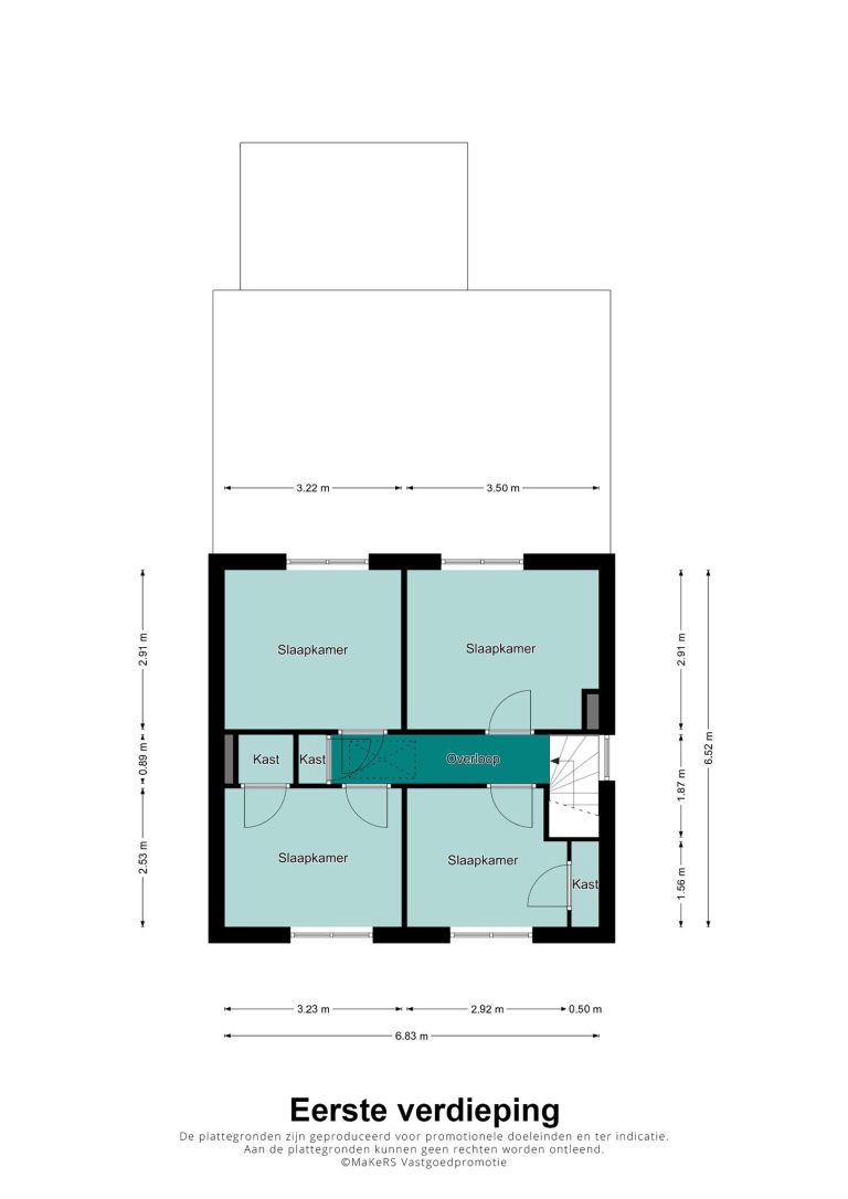
1e verdieping:
Vanuit de overloop zijn de 4 slaapkamers bereikbaar.

2e verdieping:
Middels vlizotrap bereikbare bergzolder

Tuin
De woning is gelegen op een aan de achterzijde breed uitlopend perceel. Hierdoor beschikt de woning over een royale achtertuin op het westen. De tuin is aangelegd met gazon. Hier bevindt zich tevens de verlengde garage/schuur met overkapping. 
De achtertuin en garage zijn aan de achterzijde bereikbaar vanuit de St. Luciastraat.

Over Nederweert
Deze woning is centraal gelegen met alle voorzieningen binnen handbereik. Het centrum van Nederweert met gezellige restaurants en terrasjes ligt op loopafstand, ‘om de hoek’. Hier vindt u ook een ruime keus aan supermarkten en winkels. In de landelijke omgeving van Nederweert kunt u heerlijk wandelen en fietsen. Binnen 10 autominuten staat u aan de rand van het uitgestrekte natuurgebied ‘Nationaal Park De Groote Peel’ of ‘Sarsven – De Banen’. De op- en afrit van de A2 richting Eindhoven en Maastricht is binnen 5 minuten te bereiken, net als verbindingswegen richting Helmond, Venlo en Roermond. Uitvalswegen richting Roermond en Venlo en de snelweg A2, richting Eindhoven en Maastricht, zijn op enkele autominuten afstand bereikbaar.

Kenmerken

  • Woonoppervlakte 121 m2
  • Perceeloppervlakte 533 m2
  • Slaapkamers 4 kamers
  • Bouwjaar 1957
  • Energielabel G

Streetview

Street View preview
Klik om Street View te laden
Met koffie!

Kennismaken? Altijd gratis!

  • Wij gaan kijken of er een klik is, wel zo belangrijk!
  • Wij gaan kijken hoe we je het beste kunnen helpen.
  • Is alles duidelijk? Dan gaan wij voor jou aan de slag.

Vragen over onze mogelijkheden?

Loop even binnen of neem contact met ons op. Je kunt ook het contactformulier invullen, dan nemen wij zo snel mogelijk contact met jou op.

Vandaag bereikbaar van 09:00 tot 12:00

"*" geeft vereiste velden aan

Dit veld is bedoeld voor validatiedoeleinden en moet niet worden gewijzigd.