Vandaag bereikbaar van 09:00 tot 12:00
Koopwoningen

Ontdek jouw droomwoning

Omschrijving

Vrijstaand wonen aan een rustige straat in Nederweert!
Aan een rustige en prettige woonstraat staat deze vrijstaande woning met garage, eigen oprit en ruime tuin. De woning biedt een praktische indeling, veel daglicht en volop leefruimte, zowel binnen als buiten. Een fijne gezinswoning met alle voorzieningen binnen handbereik en een uitstekende ligging in Nederweert.

Indeling

Souterrain
Ruime kelder opgedeeld in diverse ruimtes, ideaal voor provisie en extra opslag.

Begane grond
Via de hal met toiletruimte en meterkast betreed je de woning. Vanuit hier kom je in de ruime L-vormige woonkamer. In de woonkamer geniet je van veel daglicht, dankzij de grote raampartijen. De open haard zorgt voor extra sfeer en warmte.
Aan de achterzijde van de woning bevindt zich de leefkeuken met fijn tuincontact en voldoende ruimte voor een eettafel. De keuken is voorzien van inbouwkeuken met keramische kookplaat, afzuigkap, combi-oven, koelkast en vaatwasser.
Aansluitend een portaal dat toegang geeft tot de ruime bijkeuken met diverse muurkasten en aansluitingen voor het witgoed. Ook de kelder en de ruime garage zijn vanuit dit portaal bereikbaar.

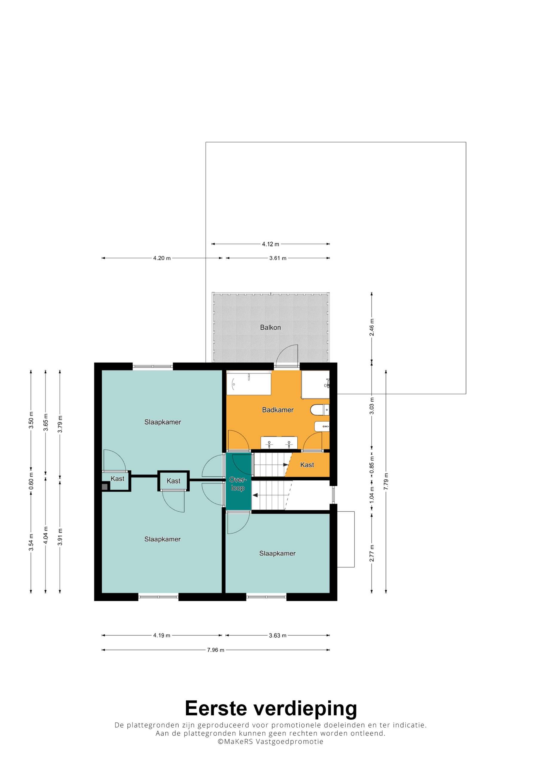
Eerste verdieping

De overloop geeft toegang tot drie grote slaapkamers en de badkamer. De badkamer is compleet uitgevoerd met een ligbad, douche, dubbele wastafel met meubel, een toilet en een bidet. Tevens bevindt zich een praktische muurkast in de badkamer.

Tweede verdieping
Via de vaste trap bereik je de overloop met aan beide zijden een handige bergruimte. Verder een ruime 4e slaapkamer met wastafel en dakraam.

Tuin
De woning beschikt over een grote tuin met veel groen, een groot gazon, borders en een tuinhuisje. Een fijne plek om te ontspannen, te spelen en te genieten van rust en privacy. Vanuit de tuin is er directe toegang tot de garage. Daarnaast beschikt de woning over een vrije achterom.

Garage en oprit
De woning heeft een eigen oprit en een ruime garage. De garage is voorzien van een elektrische kantelpoort en een aparte loopdeur. De garage biedt voldoende ruimte voor het parkeren van een auto en veel ruimte voor extra opslag. De garage beschikt verder over een keukenblokje met warm- en koud water en centrale verwarming. De ruimte is met een kleine ingreep makkelijk aan te passen naar kantoor of praktijk aan huis.

Locatie
De woning is gelegen in Nederweert, een dorp met een prettig en dorps karakter. Nederweert beschikt over goede voorzieningen zoals winkels, scholen, sportverenigingen en horeca, binnen 5 minuten bereik je de snelweg A2. Daarnaast is de ligging gunstig ten opzichte van uitvalswegen richting Weert, Eindhoven en Roermond. Ook natuurliefhebbers kunnen volop genieten van diverse wandel- en natuurgebieden in de directe omgeving.

Belangrijkste kenmerken op een rij:
+Vrijstaande woning met inpandige garage
+Vrije achterom naar de achtertuin
+Veel daglicht in de woning
+Rustige woonstraat, nabij de centrumvoorzieningen van Nederweert
+Hardhouten kozijnen in de gehele woning
+Begane grond voorzien van dubbel glas
+Ruime tuin met veel privacy en groen

Een vrijstaande woning met volop ruimte, licht en een fijne ligging. Absoluut een bezichtiging waard!

Kenmerken

  • Woonoppervlakte 213 m2
  • Perceeloppervlakte 700 m2
  • Slaapkamers 4 kamers
  • Bouwjaar 1977
  • Energielabel D
Met koffie!

Kennismaken? Altijd gratis!

  • Wij gaan kijken of er een klik is, wel zo belangrijk!
  • Wij gaan kijken hoe we je het beste kunnen helpen.
  • Is alles duidelijk? Dan gaan wij voor jou aan de slag.

Vragen over onze mogelijkheden?

Loop even binnen of neem contact met ons op. Je kunt ook het contactformulier invullen, dan nemen wij zo snel mogelijk contact met jou op.

Vandaag bereikbaar van 09:00 tot 12:00

"*" geeft vereiste velden aan

Dit veld is bedoeld voor validatiedoeleinden en moet niet worden gewijzigd.