Vandaag bereikbaar van 09:00 tot 12:00
Koopwoningen

Ontdek jouw droomwoning

Omschrijving

Vrijstaand wonen, in een rustige woonstraat, in het centrum van Nederweert met alle voorzieningen ‘om de hoek’? Wij bieden te koop aan deze gerenoveerde, instapklare en modern afgewerkte jaren-’70 woning.
Deze ruime woning heeft een woonoppervlak van maar liefst 162m2 met o.a. een woonkamer met moderne eetkeuken, bijkeuken met toegang tot de royale voor meerdere doeleinden geschikte garage/hobbyruimte, 3 ruime slaapkamers, een moderne complete badkamer en een vaste trap naar de royale 2e verdieping met mogelijkheid tot een 4e slaapkamer.

De woning is gelegen op een mooi perceel van 404 m2 en heeft een privacy biedende achtertuin op het noordoosten met achterom, royale oprit en carport en ruime garage/hobbyruimte.

De woning is voorzien van dak-/spouw- en vloerisolatie, grotendeels kunststof kozijnen met HR++-glas, houten kozijnen met dubbel glas, vloerverwarming op de begane grond en een Nefit Ecomline Excellent HR combiketel hetgeen resulteert in een definitief energielabel C.

Belangrijkste kenmerken in een oogopslag:
+ rustige woonstraat
+ op loopafstand van centrum
+ royale oprit en carport
+ ruime privacybiedende achtertuin met achterom
+ woonoppervlak van 162 m2
+ moderne keuken met schiereiland
+ tegelvloer met vloerverwarming en stucwerk wanden op begane grond
+ 3 ruime slaapkamers
+ moderne complete badkamer
+ vaste trap naar royale zolder (4e slaapkamer)
+ ruime garage/bergingruimte (11,8 bij 2,8m) ook te gebruiken als kantoor/hobbyruimte
+ energielabel C

Kortom een modern afgewerkte gezinswoning met meer dan voldoende ruimte, gelegen op een rustige, prettige locatie.

Indeling

Begane grond
Toegang tot de woning via de overdekte entree, gelegen in de voorgevel.
Ruime ontvangsthal met garderobe, meterkast en geheel betegelde toiletruimte met hangend toilet en fonteintje.
Vanuit de hal betreedt u de eetkeuken die in open verbinding staat met de woonkamer, gezamenlijk woonoppervlak ca. 50m2. De moderne keukenopstelling heeft een composiet werkblad en bestaat uit een kastenwand aan de zijkant met daarin het spoelgedeelte, de koelkast, vaatwasser & combi oven/magnetron en een schiereiland met inductie kookplaat en afzuigkap. De moderne, lichte woonkamer met gashaard heeft aan de achterzijde een erker met loopdeur naar de tuin en een grote raampartij aan de voorzijde.
Vanuit de keuken is de bijkeuken bereikbaar. De bijkeuken is voorzien van een keukenblok met extra werk-/opbergruimte en aansluitingen voor het witgoed. Vanuit de bijkeuken zijn de carport, garage/berging en via de overkapping de tuin bereikbaar.

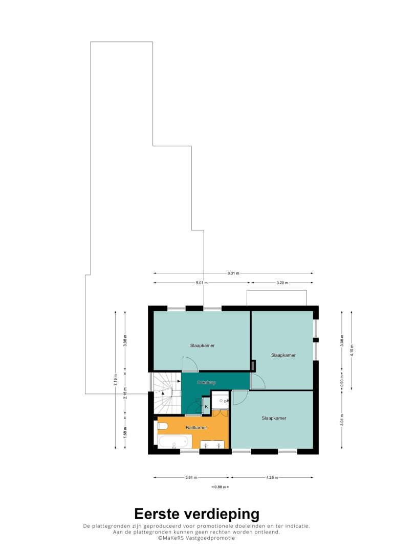
1e verdieping
Vanuit de overloop zijn de 3 ruime slaapkamers en de badkamer bereikbaar. De slaapkamers zijn allen ruim van formaat (ca. 15, 13 en 12m2) voorzien van laminaatvloer en stucwerkwanden. Twee slaapkamers, afmeting ca. 5m x 3m en 4,1m x 3,2m, zijn gelegen aan de achterzijde. Slaapkamer 3, afmeting ca. 4,3m x 3m is gelegen aan de voorzijde. De complete, vernieuwde en vergrootte badkamer is geheel betegeld en voorzien van ligbad, inloopdouche, badkamermeubel met dubbele wastafel en hangend toilet.

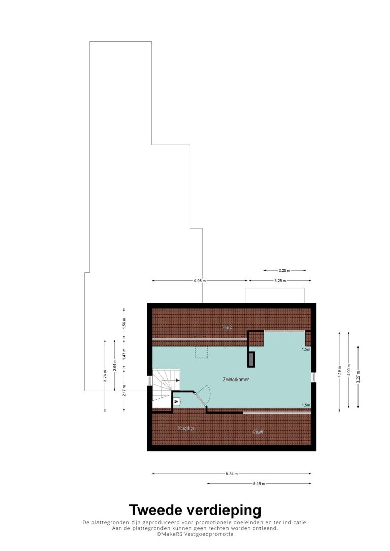
2e verdieping
Middels vaste trap bereikt u de 2e verdieping. Deze zolderruimte is een grote ruimte van ca. 22m2 o.a. voorzien van dakkapel, diverse (dak-)ramen, laminaatvloer, bergkasten in de schuine delen en een aparte kast met opstelling van de Nefit Ecomline Excellent HR combiketel (2008).
Deze verdieping kan prima functioneren als speelruimte voor de kinderen, als hobbyruimte of kantoor. Vanwege de afmeting (ca. 7,5 bij 3m) zou deze ruimte prima kunnen worden opgesplitst waardoor er een ruime voorzolder/wasruimte en een 4e slaapkamer ontstaat.

Garage en Tuin
De garage is via de bijkeuken inpandig te bereiken. Deze garage is ruim, ca 11,8m bij 2,8m, voorzien van tegelvloer, voorzetwanden met isolatie en elektrische sectionaalpoort naar de carport/oprit. Aan de achterzijde heeft de garage een dubbele openslaande deur naar de tuin. Voor de garage bevindt zich de carport en oprit met ruimte voor 2 à 3 auto’s.
De achtertuin biedt veel privacy en is aangelegd met borders en gazon. De achtertuin is ruim waardoor het realiseren van een aanbouw tot de mogelijkheden behoort. De voor- en achtertuin zijn netjes en verzorgd aangelegd. De achterom bevindt zich aan de rechterzijde van de woning.

Over Nederweert
Nederweert kent veel voorzieningen waaronder gezellige terrasjes en restaurants, sport, scholen en biedt een ruime keuze aan supermarkten en winkels. De woning is centraal gelegen met alle voorzieningen binnen handbereik. De op- en afrit van de A2 richting Eindhoven en Maastricht is binnen 5 minuten te bereiken, net als de verbindingswegen richting Helmond, Venlo en Roermond. Daarnaast is het NS-intercitystation in Weert eenvoudig te bereiken met de auto of het openbaar vervoer. In de landelijke omgeving van Nederweert kunt u heerlijk wandelen en fietsen. Binnen 10 autominuten staat u aan de rand van het uitgestrekte natuurgebied ‘Nationaal Park De Groote Peel’ of ‘Sarsven – De Banen’.

Kenmerken

  • Woonoppervlakte 162 m2
  • Perceeloppervlakte 404 m2
  • Slaapkamers 3 kamers
  • Bouwjaar 1972
  • Energielabel C

Streetview

Street View preview
Klik om Street View te laden
Met koffie!

Kennismaken? Altijd gratis!

  • Wij gaan kijken of er een klik is, wel zo belangrijk!
  • Wij gaan kijken hoe we je het beste kunnen helpen.
  • Is alles duidelijk? Dan gaan wij voor jou aan de slag.

Vragen over onze mogelijkheden?

Loop even binnen of neem contact met ons op. Je kunt ook het contactformulier invullen, dan nemen wij zo snel mogelijk contact met jou op.

Vandaag bereikbaar van 09:00 tot 12:00

"*" geeft vereiste velden aan

Dit veld is bedoeld voor validatiedoeleinden en moet niet worden gewijzigd.