Vandaag bereikbaar van 08:30 tot 12:30 en van 13:30 tot 17:30
Koopwoningen

Ontdek jouw droomwoning

Omschrijving

Goed onderhouden halfvrijstaande woning met garage, serre en zonnige tuin op het zuiden

Ben je op zoek naar een nette instapklare woning op een rustige locatie in Nederweert? Dan is Willem I straat 32 een bezichtiging waard. Deze goed onderhouden halfvrijstaande woning beschikt over een woonkamer met halfopen keuken, een serre/tuinkamer, 2 slaapkamers, een ruime badkamer, garage met extra berging én een onderhoudsvriendelijke achtertuin op het zuiden.

De woning is bovendien voorzien van diverse praktische en duurzame extra’s, zoals dakisolatie, gedeeltelijke vloerisolatie, deels dubbel glas, een nieuwe cv-ketel (2022) en 6 zonnepanelen (2024). Dit resulteert in een energielabel D.

Een ideale woning voor starter(-s), alleenstaanden of jonge stellen die comfortabel willen wonen op een fijne plek.

Belangrijkste kenmerken:
+ Goed onderhouden halfvrijstaande woning met ruime oprit
+ Lichte woonkamer met halfopen keuken
+ Fijne serre / tuinkamer met schuifpui naar de tuin
+ 2 slaapkamers en een ruime complete badkamer
+ Garage met daarachter een extra tuinberging
+ Onderhoudsvriendelijke achtertuin op het zuiden
+ Voorzien van 6 zonnepanelen (2024)
+ Nieuwe cv-ketel (2022)
+ Gelegen op korte afstand van basisschool, zwembad, fitness, park en speeltuintje
+ Winkels, supermarkten, restaurants en cafés op loop- en fietsafstand
+ Goede bereikbaarheid richting A2 (Eindhoven / Den Bosch / Maastricht)

Indeling

Begane grond
De entree van de woning bevindt zich aan de zijgevel. Vanuit de hal, met meterkast, trapkast en een geheel betegelde toiletruimte met zwevend toilet en fonteintje, loop je door naar de woonkamer. De woonkamer en halfopen keuken zijn afgewerkt met een keurige tegelvloer en voorzien van vloerverwarming, wat zorgt voor extra comfort. Dankzij de grote raampartijen aan de voor- en achterzijde geniet de woonkamer van veel natuurlijke lichtinval. De aanwezige gashaard zorgt voor een sfeervol brandpunt en extra warmte tijdens de koudere maanden.
De keuken is ingericht met een nette inbouwkeuken en beschikt over diverse apparatuur, waaronder een inductiekookplaat, afzuigkap, vaatwasser, combi-oven/magnetron en koelkast.
Aan de achterzijde van de woning bevindt zich de fijne serre. Een heerlijke extra leefruimte waar je al vroeg in het voorjaar kunt genieten van het zonnetje. Via de schuifpui heb je direct toegang tot de zonnige achtertuin op het zuiden.

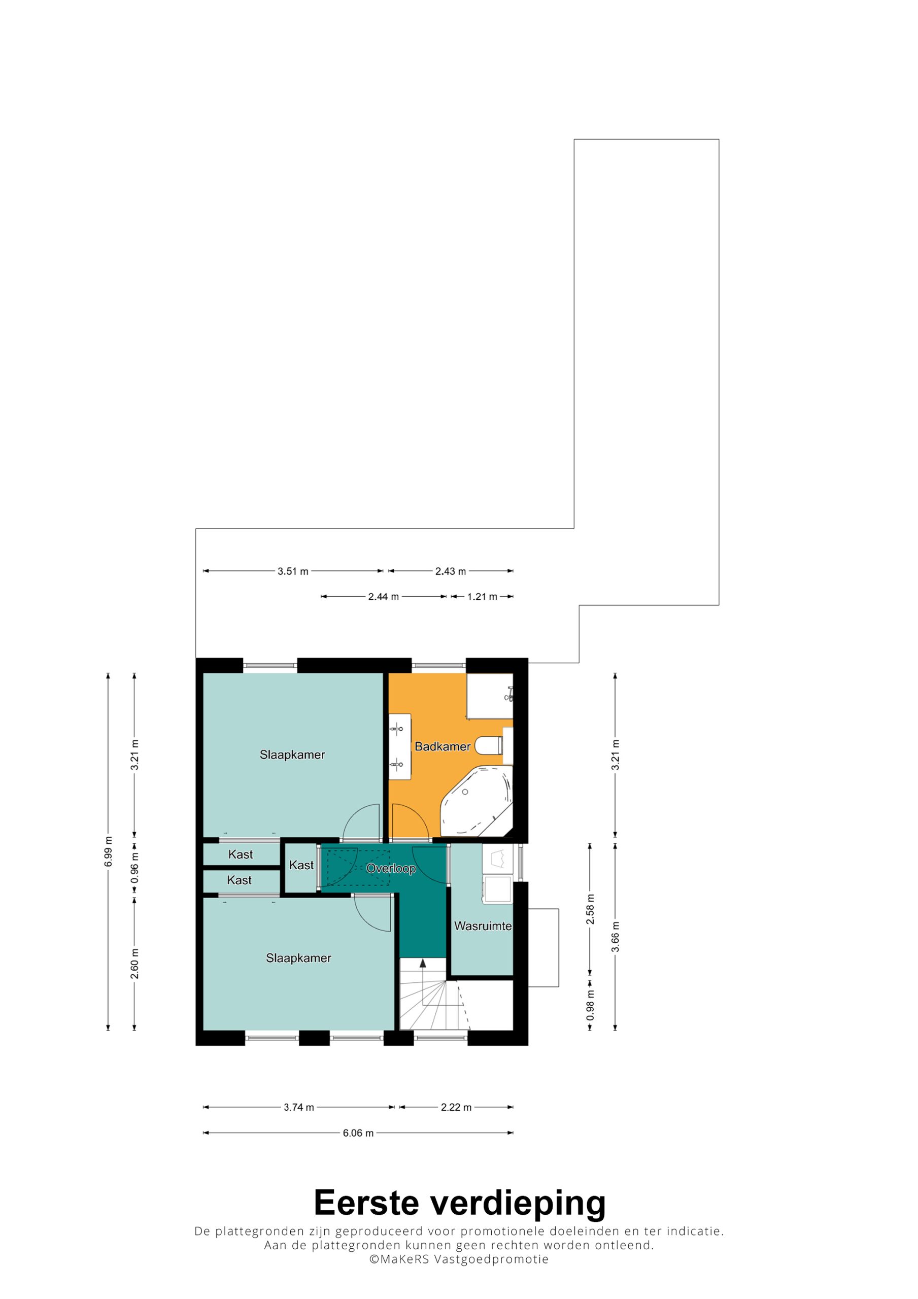
Eerste verdieping
De overloop biedt toegang tot 2 slaapkamers, de badkamer en een praktische wasruimte (voormalige douche). De slaapkamer en badkamer aan de achterzijde zijn voorzien van rolluiken. De geheel betegelde badkamer is royaal van opzet en uitgerust met hoekbad, douchecabine, badkamermeubel met dubbele wastafel en toilet.

Tweede verdieping
Via een vlizotrap is de zolderverdieping bereikbaar. Ideaal als extra bergruimte.

Tuin en garage
De achtertuin, gelegen op het zuiden, is onderhoudsvriendelijk aangelegd met een terras en borders met beplanting. Een fijne plek om in alle rust van de zon te genieten.
De garage is rechtstreeks bereikbaar vanuit de serre en beschikt over een elektrische sectionaalpoort naar de oprit aan de voorzijde. Achter de garage bevindt zich bovendien nog een extra tuinberging, ideaal voor fietsen, tuingereedschap of extra opslag.

Over Nederweert
De woning is gelegen aan een brede straat in een rustige woonwijk van Nederweert. In de directe omgeving vind je diverse voorzieningen zoals een basisschool, zwembad, fitness en speelvoorzieningen.
Ook het gezellige centrum van Nederweert ligt op loop- en fietsafstand. Hier vind je een ruim aanbod aan supermarkten, winkels, restaurants en cafés.
Daarnaast woon je hier op een uitstekende locatie ten opzichte van natuur en uitvalswegen. In de landelijke omgeving van Nederweert kun je volop genieten van wandelen en fietsen. Binnen circa 10 autominuten bereik je prachtige natuurgebieden zoals Nationaal Park De Groote Peel en Sarsven – De Banen. Ook de A2 richting Eindhoven en Maastricht is binnen enkele minuten bereikbaar, evenals verbindingswegen richting Helmond, Venlo en Roermond.

Kenmerken

  • Woonoppervlakte 104 m2
  • Perceeloppervlakte 221 m2
  • Slaapkamers 2 kamers
  • Bouwjaar 1968
  • Energielabel D
Met koffie!

Kennismaken? Altijd gratis!

  • Wij gaan kijken of er een klik is, wel zo belangrijk!
  • Wij gaan kijken hoe we je het beste kunnen helpen.
  • Is alles duidelijk? Dan gaan wij voor jou aan de slag.

Vragen over onze mogelijkheden?

Loop even binnen of neem contact met ons op. Je kunt ook het contactformulier invullen, dan nemen wij zo snel mogelijk contact met jou op.

Vandaag bereikbaar van 08:30 tot 12:30 en van 13:30 tot 17:30

"*" geeft vereiste velden aan

Dit veld is bedoeld voor validatiedoeleinden en moet niet worden gewijzigd.