Vandaag bereikbaar van 09:00 tot 12:00
Koopwoningen

Ontdek jouw droomwoning

Omschrijving

Rustig gelegen halfvrijstaand woonhuis op Budschop

Aan het einde van een doodlopende gedeelte van de Wilhelminastraat in Budschop ligt deze verzorgde, halfvrijstaande woning, perfect onderhouden door de eerste eigenaren. De woning straalt een lichte en frisse sfeer uit, mede door de neutrale kleurstellingen en de natuurstenenvloer op de begane grond. De aangebouwde keuken, drie slaapkamers, royale garage en extra multifunctionele berging/hobbyruimte van ca. 20 m² maken het geheel compleet.

De eigenaren hebben de woning door de jaren heen met veel zorg onderhouden en tussentijds diverse vernieuwingen doorgevoerd, waaronder een moderne keuken en een complete badkamer. De woning is instapklaar en biedt een mooie balans tussen comfort en praktische indeling, ideaal voor een gezin dat zoekt naar een rustige locatie met alle voorzieningen in de buurt.

Kenmerken:
+ Woonoppervlak: 97 m²
+ Perceel: 307 m²
+ Lichte en verzorgde woonkamer met aangebouwde keuken
+ Drie slaapkamers en complete, moderne badkamer
+ Royale garage (6,6 x 3,3 m)
+ Extra berging/hobby- of werkruimte van ca. 20 m²
+ Ruime achtertuin met achterom, terras en gazon
+ Instapklaar en netjes afgewerkt

Indeling

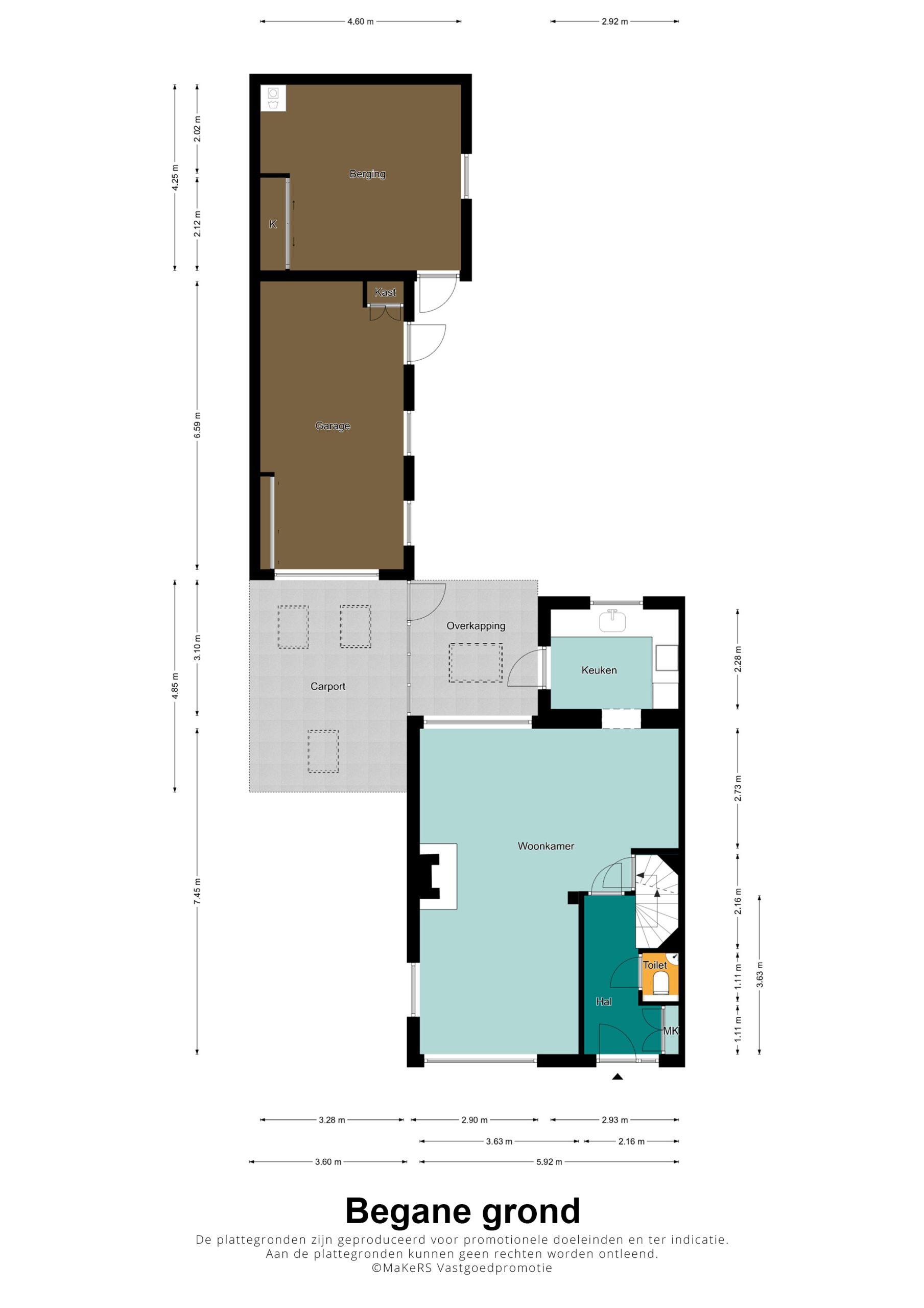
Begane grond:
De entree bevindt zich aan de voorzijde van de woning en geeft toegang tot de ontvangsthal met meterkast en geheel betegelde toiletruimte met hangend toilet. De L-vormige woonkamer is licht en ruim, met grote raampartijen aan zowel de voor- als achterzijde en een sfeervolle schouw met gashaard. Vanuit de woonkamer toegang tot de kelder. De aangebouwde keuken is voorzien van een hoekopstelling met keramische kookplaat, afzuigkap, combi oven-magnetron, vaatwasser, koelkast en een granieten werkblad. Vanuit de keuken is er toegang tot de overkapping en de achtertuin.

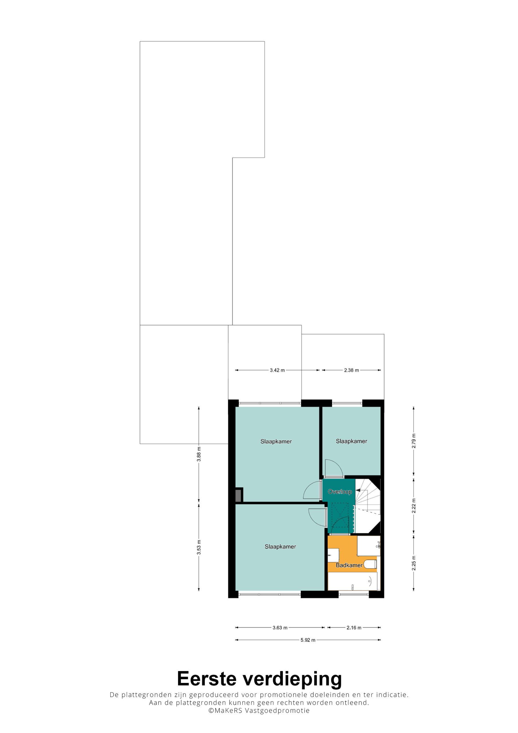
Eerste verdieping:
De overloop biedt toegang tot drie slaapkamers en de badkamer. De ouderslaapkamer (ca. 3,6 x 3,5 m) ligt aan de voorzijde, terwijl de tweede (ca. 3,9 x 3,4 m) en derde slaapkamer (ca. 2,8 x 2,4 m) aan de achterzijde liggen. Alle slaapkamers zijn voorzien van tapijt en rolluiken. De badkamer is volledig betegeld en compleet met ligbad, douchecabine, toilet en wastafel.

Tuin, garage en berging:
De op het noorden gelegen achtertuin is royaal aangelegd met terras, gazon en borders en beschikt over een achterom via de oprit. De oprit met carport biedt ruimte voor meerdere auto’s. De garage is ruim (ca. 6,6 x 3,3 m) en voorzien van een sectionaalpoort. Achter de garage bevindt zich een extra berging met aansluiting voor wasmachine en droger, geschikt voor diverse doeleinden zoals hobbyruimte, speelkamer of kantoor aan huis.

Omgeving
De woning ligt in een verkeersluwe straat binnen een rustige woonwijk van Nederweert. In de directe omgeving vindt u een basisschool, zwembad, fitness en diverse speelvoorzieningen. Het centrum van Nederweert met gezellige restaurants, cafés en een breed winkelaanbod is op loop- of fietsafstand. Voor liefhebbers van natuur en recreatie ligt het uitgestrekte Nationaal Park De Groote Peel of Sarsven – De Banen binnen 10 autominuten. Ook de A2 richting Eindhoven en Maastricht en andere verbindingswegen naar Helmond, Venlo en Roermond zijn binnen enkele minuten bereikbaar.

Kenmerken

  • Woonoppervlakte 97 m2
  • Perceeloppervlakte 307 m2
  • Slaapkamers 3 kamers
  • Bouwjaar 1968
  • Energielabel E
Met koffie!

Kennismaken? Altijd gratis!

  • Wij gaan kijken of er een klik is, wel zo belangrijk!
  • Wij gaan kijken hoe we je het beste kunnen helpen.
  • Is alles duidelijk? Dan gaan wij voor jou aan de slag.

Vragen over onze mogelijkheden?

Loop even binnen of neem contact met ons op. Je kunt ook het contactformulier invullen, dan nemen wij zo snel mogelijk contact met jou op.

Vandaag bereikbaar van 09:00 tot 12:00

"*" geeft vereiste velden aan

Dit veld is bedoeld voor validatiedoeleinden en moet niet worden gewijzigd.