Vandaag bereikbaar van 09:00 tot 12:00
Koopwoningen

Ontdek jouw droomwoning

Omschrijving

In een rustige woonstraat, gelegen ‘op Budschop’ bieden wij te koop aan deze nette twee-onder-een kap woning met drie slaapkamers, vaste trap naar 2e verdieping met 4e kamer en vrijstaande garage. De woning is gelegen op een ruim perceel van 303 m2 met een op het westen georiënteerde achtertuin zonder direkte achterburen. De ruime achtertuin biedt mogelijkheden voor het realiseren van een aanbouw.
Deze woning is netjes verzorgd, heeft dubbel glas op de begane grond en grotendeels rolluiken. De woning is nog niet zo lang geleden voorzien van een nieuwe keuken (ca. 2017) en nieuwe badkamer (ca. 2014).  
 

Wilhelminastraat 33 in het kort: 
+ royaal perceel van 303 m2
+ drie slaapkamers en een ruime en moderne badkamer
+ woonkamer met open keuken voorzien van vernieuwde opstand
+ vaste trap naar zolder met extra kamer
+ ruime tuin (ca. 15 bij 10m) op het westen met achterom, zonder directe achterburen
+ ligging aan een rustige straat 
+ op enkele minuten lopen van basisschool, fitness, zwembad en speeltuintje 

Kortom een prima gezinswoning met mogelijkheden om uit te bouwen in de toekomst.

Indeling:
 
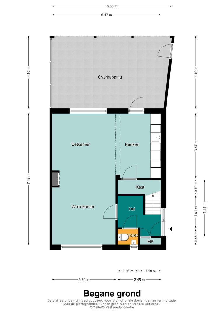
Begane grond  
Toegang tot de woning via de in de zijgevel gelegen entree. Hal met toiletruimte en meterkast, geeft toegang tot de woonkamer met open haard. De woonkamer heeft veel lichtinval middels de grote raampartijen aan voor- en achterzijde. De open keuken heeft een moderne, lichte keukenopstelling voorzien van inductiekookplaat, afzuigkap, oven, aparte magnetron, vaatwasser en koelkast. Vanuit de keuken toegang tot verdiepte kelderkast met ruime opbergmogelijkheden en kruipruimte.
De vloeren zijn voorzien van tegels en de wanden van stucwerk.
  
1e verdieping  
De overloop biedt toegang tot 3 slaapkamers en de royale badkamer. Slaapkamer 1, groot ca. 3,6 x 3,65m, is gelegen aan de voorzijde en heeft aansluiting voor wasmachine en droger. Slaapkamer 2, eveneens groot ca. 3,6 x 3,65, en slaapkamer 3, groot 3,65 x 2,45m, zijn gelegen aan de achterzijde. De moderne, geheel betegelde badkamer is ca. 11 jaar geleden vernieuwd en voorzien van ligbad, badkamermeubel met spiegel, toilet en designradiator.
De bovenverdieping is grotendeels voorzien van laminaat waarvan 1 slaapkamer met vloerbedekking 
  
2e verdieping  
Via vaste trap komt u op de tweede verdieping, deze is opgedeeld in een overloop met bergruimte en een extra kamer. 
Deze kan worden gebruikt als slaap-, werk- of hobbykamer. Achter de knieschotten bevinden zich nog bergruimtes.  
  
Garage en Tuin 
De garage is ruim, ca. 5,9 x 3,15m, gelegen aan de achterzijde van het perceel met erachter nog een houten tuinberging. Voor de garage bevindt zich een royale oprit. Hier kunt u 3 auto’s parkeren op eigen terrein.
Zowel de voor- als achtertuin zijn keurig verzorgd. Vanuit de oprit is middels vrije achterom de achtertuin bereikbaar.
De achtertuin is vrij gelegen, heeft een betegeld terras met overkapping (ca. 6 bij 4m) en is verder aangelegd met borders en groot gazon. Extra zonwering aanwezig boven de overkapping. Vanuit de achtertuin toegang naar de garage en tuinberging.

  
Over Nederweert en omgeving 
De woning is gelegen in een verkeersluwe straat, in een rustige woonwijk van Nederweert. In de directe omgeving zijn een basisschool, zwembad, fitness en speelvoorzieningen te vinden. 
Het centrum van Nederweert met gezellige restaurants en cafés ligt op loop/fietsafstand. Hier vindt u ook een ruime keus aan supermarkten en winkels. 
In de landelijke omgeving van Nederweert kunt u heerlijk wandelen en fietsen. Binnen 10 autominuten staat u aan de rand van het uitgestrekte natuurgebied ‘Nationaal Park De Groote Peel’ of ‘Sarsven – De Banen’. De op- en afrit van de A2 richting Eindhoven en Maastricht is binnen 5 minuten te bereiken, net als verbindingswegen richting Helmond, Venlo en Roermond.

Kenmerken

  • Woonoppervlakte 92 m2
  • Perceeloppervlakte 303 m2
  • Slaapkamers 3 kamers
  • Bouwjaar 1975
  • Energielabel C

Streetview

Street View preview
Klik om Street View te laden
Met koffie!

Kennismaken? Altijd gratis!

  • Wij gaan kijken of er een klik is, wel zo belangrijk!
  • Wij gaan kijken hoe we je het beste kunnen helpen.
  • Is alles duidelijk? Dan gaan wij voor jou aan de slag.

Vragen over onze mogelijkheden?

Loop even binnen of neem contact met ons op. Je kunt ook het contactformulier invullen, dan nemen wij zo snel mogelijk contact met jou op.

Vandaag bereikbaar van 09:00 tot 12:00

"*" geeft vereiste velden aan

Dit veld is bedoeld voor validatiedoeleinden en moet niet worden gewijzigd.