Vandaag bereikbaar van 09:00 tot 12:00
Koopwoningen

Ontdek jouw droomwoning

Omschrijving

Op een rustige, kindvriendelijke locatie gelegen, te moderniseren halfvrijstaand woonhuis met aan de voorzijde vrij uitzicht over een groenvoorziening/speelveldje.
Deze jaren-’80 woning biedt ruimte aan een woonkamer met open keuken, 3 slaapkamers, badkamer, vaste trap naar zolder met mogelijkheid voor een 4e slaapkamer, garage en op het zuidoosten gelegen achtertuin.

De woning is bij de bouw voorzien van vloer- , muur- en dakisolatie en houten kozijnen met dubbel glas. De Intergas cv-combiketel dateert van 2016. Hetgeen resulteert in een definitief energielabel B.

Deze woning biedt voldoende ruimte voor een jong gezin, maar dient wel nog geheel te worden afgewerkt/gemoderniseerd.

Kortom een ideale gezinswoning voor iemand die graag de handen uit de mouwen steekt en de woning geheel naar eigen wens en smaak wil afwerken !

Indeling

Begane grond:
Via royale oprit met plaats voor meerdere auto’s bereikt u de in de zijgevel gelegen overdekte entree.
Ontvangsthal met meterkast, toegang kruipruimte en gedeeltelijk betegelde toiletruimte met staand toilet en fonteintje.
Woonkamer aan met grote raampartij aan de voorzijde met vrij uitzicht. Aan de achterzijde de open keuken met eenvoudige keukenopstand, trapkast en deur naar achtertuin

1e verdieping:
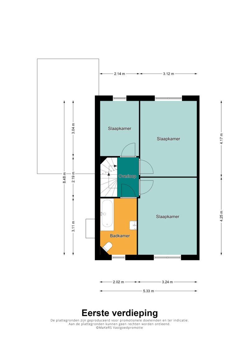
Overloop met toegang tot 3 slaapkamers en de badkamer.
Twee slaapkamers, groot ca 6,5 en 13m2, zijn gelegen aan de achterzijde van de woning. De ouderslaapkamer (groot ca 4,25 bij 3,20m) is gelegen aan de voorzijde. De eenvoudige, geheel betegelde badkamer is voorzien van ligbad met douchescherm, toilet en wastafel.

2e verdieping:
Via vaste trap bereikbare zolder met zolderkamer (4e slaapkamer) en bergruimte met opstelling Intergas cv-combiketel (2016) en mechanische afzuiging.

Tuin en garage
De woning is gelegen op een hoekperceel met een op het zuidoosten gelegen achtertuin. De achtertuin is deels betegeld en kan eveneens nog geheel naar eigen wens worden aangelegd.
Vanuit de achtertuin is de garage met stalenkantelpoort naar de oprit bereikbaar.

Dus……. ben je op zoek naar een woning die je nog moet moderniseren en geheel naar eigen smaak kunt afwerken?
Plan dan een bezichtiging in via ons kantoor.

Aanvullende Info:
· Projectnotaris: VAD Notarissen Rotterdam;
· Woning komt uit de verhuur, niet bewoningsclausule van toepassing;
· Aanvaarding op korte termijn.

Kenmerken

  • Woonoppervlakte 115 m2
  • Perceeloppervlakte 226 m2
  • Slaapkamers 3 kamers
  • Bouwjaar 1981
  • Energielabel B

Streetview

Street View preview
Klik om Street View te laden
Met koffie!

Kennismaken? Altijd gratis!

  • Wij gaan kijken of er een klik is, wel zo belangrijk!
  • Wij gaan kijken hoe we je het beste kunnen helpen.
  • Is alles duidelijk? Dan gaan wij voor jou aan de slag.

Vragen over onze mogelijkheden?

Loop even binnen of neem contact met ons op. Je kunt ook het contactformulier invullen, dan nemen wij zo snel mogelijk contact met jou op.

Vandaag bereikbaar van 09:00 tot 12:00

"*" geeft vereiste velden aan

Dit veld is bedoeld voor validatiedoeleinden en moet niet worden gewijzigd.