Vandaag bereikbaar van 09:00 tot 12:00
Koopwoningen

Ontdek jouw droomwoning

Omschrijving

Aan een mooie, brede woonstraat en gelegen op een royaal perceel van 347m2 bieden wij te koop aan deze netjes onderhouden halfvrijstaande gezinswoning met aangebouwde tuinkamer, 3 ruime slaapkamers, nette badkamer, vaste trap naar zolder, garage met een grote oprit en een royale achtertuin met overdekt terras.

Deze halfvrijstaande woning met uitzicht over een brede groenstrook aan de voorzijde ligt in een rustige, kindvriendelijke buurt. De supermarkt en basisschool liggen om de hoek.
De woning is netjes onderhouden, voorzien van hardhouten kozijnen met dubbel glas, grotendeels voorzien van rolluiken, een nageïsoleerd dak en Remeha Quinta cv-combiketel.

Kenmerken in één oogopslag:
+ royaal perceel van 347m2
+ woonoppervlak ca. 120m2
+ woonkamer met tuinkamer
+ 3 ruime slaapkamers
+ vaste trap naar zolder met mogelijkheid extra slaapkamer
+ energielabel E

Kortom een leuke gezinswoning met een royale tuin op een mooie locatie in Ospel.

Indeling

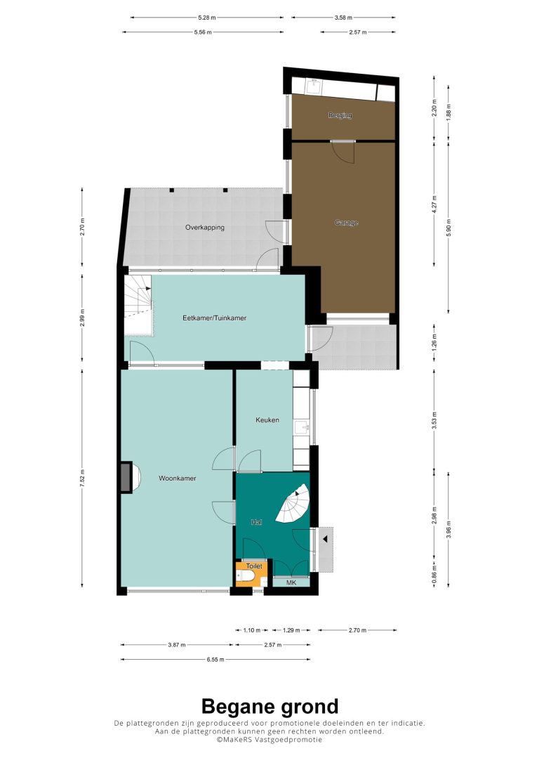
Begane grond:
Overdekte entree via zijgevel. Ontvangsthal met meterkast, geheel betegelde toiletruimte met fonteintje en trapkast voor extra opbergruimte.
Gezellige woonkamer (ca. 7,5 bij 3,9m) voorzien van houtkachel, grote raampartij aan voorzijde en achterzijde, deur naar de tuinkamer en de keuken.
De dichte keuken met inbouwkeuken is voorzien van keramische kookplaat, afzuigkap, magnetron, koelkast, kleine vaatwasser en een granieten werkblad.
De tuinkamer is vanuit de woonkamer een deur te bereiken. Vanuit de keuken is er een directe toegang. Via een grote raampartij zicht op het overdekt terras en de daarachter gelegen achtertuin. Vanuit de tuinkamer is middels een trap de ruime kelder bereikbaar.

Eerste verdieping
De overloop biedt toegang tot de drie slaapkamers en de badkamer.
De slaapkamers zijn allen ruim van formaat. Slaapkamer 1 (groot ca. 3,85 bij 3,85m) met balkon is gelegen aan de voorzijde. Slaapkamer 2 (groot ca. 3,85 bij 3,55m) en slaapkamer 3 (groot ca. 3,25 bij 2,55m) zijn gelegen aan de achterzijde.
De nette badkamer is geheel betegeld, uitgerust met een ligbad, inloopdouche, toilet, badkamermeubel, designradiator en vloerverwarming (functioneert?).

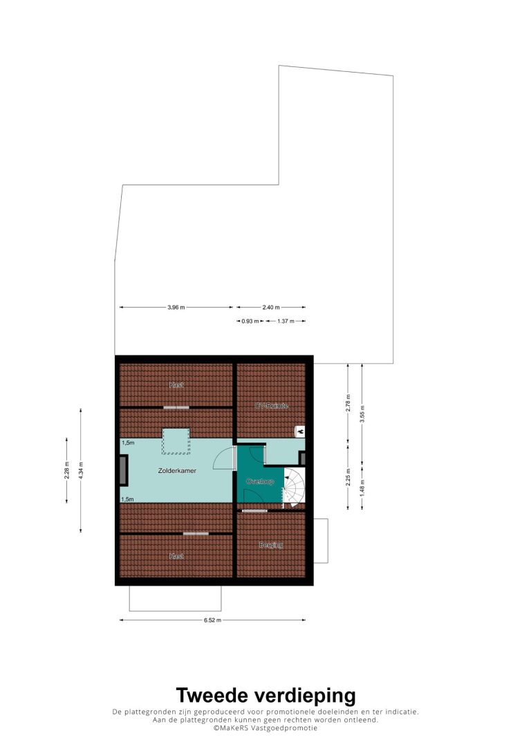
Tweede verdieping
Middels een vaste trap is de zolder bereikbaar.
Voorzolder met bergingruimte voor o.a. opstelling cv-combiketel en aansluitend de zolderkamer.   

Tuin en Garage
Verzorgde voortuin met naastgelegen royale oprit. De royale achtertuin is gelegen op het oosten. Hier bevindt zicht een overkapping en een eenvoudig tuinhuis. De garage is ruim (ca. 27m2) met aan de voorzijde een elektrische sectionaalpoort naar de royale oprit. Het achterste deel van de garage is een aparte ruimte met extra keukenblok. 

Over Ospel
Ospel ligt tussen Nederweert en Meijel met in de nabijheid het Nationaal Park “de Groote Peel”. De centraal gelegen woning ligt nabij een basisschool en sportvoorziening. Voorzieningen als een bakker, slager en buurt-supermarkt bevinden zich op loopafstand. De op- en afrit van de A2 (Maastricht – Eindhoven) is in ongeveer 10 minuten bereikbaar evenals uitvalswegen in de richting van Helmond, Venlo en Roermond.

Kenmerken

  • Woonoppervlakte 120 m2
  • Perceeloppervlakte 347 m2
  • Slaapkamers 4 kamers
  • Bouwjaar 1970
  • Energielabel E

Streetview

Street View preview
Klik om Street View te laden
Met koffie!

Kennismaken? Altijd gratis!

  • Wij gaan kijken of er een klik is, wel zo belangrijk!
  • Wij gaan kijken hoe we je het beste kunnen helpen.
  • Is alles duidelijk? Dan gaan wij voor jou aan de slag.

Vragen over onze mogelijkheden?

Loop even binnen of neem contact met ons op. Je kunt ook het contactformulier invullen, dan nemen wij zo snel mogelijk contact met jou op.

Vandaag bereikbaar van 09:00 tot 12:00

"*" geeft vereiste velden aan

Dit veld is bedoeld voor validatiedoeleinden en moet niet worden gewijzigd.