Vandaag bereikbaar van 09:00 tot 12:00
Koopwoningen

Ontdek jouw droomwoning

Omschrijving

Aan een rustige woonstraat op loopafstand van het centrum van Nederweert bieden wij te koop aan dit ruim, modern afgewerkt halfvrijstaand woonhuis met garage en vrij gelegen achtertuin. De woning is voorzien van een woonkamer met open keuken, 3 slaapkamers, een moderne badkamer en een hobbyruimte/mogelijke 4e slaapkamer op de 2e verdieping.

Deze woning is voorzien van vloer, spouwmuur- en dakisolatie, kunststof kozijnen met HR++ glas, 10 zonnepanelen (2022), een nieuwe HR cv-combiketel (2023), een parketvloer met vloerverwarming op de begane grond. Dit alles resulteert in een energielabel A (waarbij met de aanwezige zonnepanelen en nieuwe cv-ketel nog geen rekening is gehouden).

Belangrijkste kenmerken:
– bouwjaar 2006
– woonoppervlak 111m2 (exclusief berging/garage)
– perceel 197m2
– vrije achtertuin met overkapping op het zuiden
– geheel geïsoleerd, energielabel A
– moderne keuken met alle apparatuur
– moderne badkamer
– 3 slaapkamers, 4e slaapkamer eenvoudig te realiseren

Kortom een heerlijke, instapklare gezinswoning op een fijne locatie met o.a. de basisschool om de hoek.

Indeling

Begane grond:
Via de oprit met carport bereikt u de in de zijgevel gelegen entree. Hier bevindt zich de ontvangsthal met meterkast en de moderne toiletruimte met hangend toilet en fonteintje. Vanuit de hal komt u in de aan de voorzijde gelegen woonkamer met grote raampartij die zorgt voor veel daglicht. De woonkamer loopt aan de achterzijde door naar de open keuken met moderne witte hoogglans hoekopgestelde keuken. Deze keuken is voorzien van 5-pits gaskookplaat, afzuigkap, vaatwasser, koelkast en een combi oven/magnetron. De in de woonkamer aanwezige trapkast zorgt voor extra berg-provisieruimte.

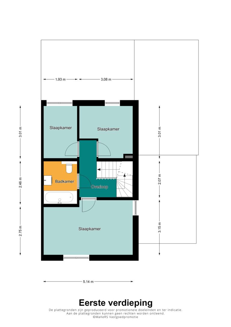
1e verdieping:
De overloop biedt toegang tot de 3 slaapkamers en de badkamer.
De ouderslaapkamer van ca. 14 m2 is gelegen aan de voorzijde van de woning. De 2 kinderkamers bevinden zich aan de achterzijde.
De moderne in neutrale kleuren afgewerkte badkamer is geheel betegeld en voorzien van ligbad met douchescherm, een badkamermeubel met verwarmde spiegel en hangend toilet.

2e verdieping:
Middels een vaste trap is de 2e verdieping bereikbaar. Deze beschikt over een dakraam en is prima geschikt als hobbyruimte of 4e slaapkamer.
Hier bevindt zich de Nefit HR combiketel (2023), de WTW installatie en de witgoedaansluitingen.
Door middel van het plaatsen van een tussenwand evt. in combinatie met een dakkapel kan hier een mooie 4e slaapkamer of werkkamer worden gecreëerd.

Tuin en garage/berging
Vanuit de keuken is de op het zuiden gelegen, privacybiedende achtertuin bereikbaar. Deze is netjes aangelegd, voorzien van gras en een terras met loungehoek. De mooie aansluitend aan de woning gelegen overkapping met terras zorgt dat u heerlijk kunt genieten van de eerste zonnestralen. Deze ‘Douglas’-houten tuinoverkapping is voorzien van kunststof dakplaten, waardoor er voldoende licht in de woning komt. Via de overkapping is de ruime (ca 6,1 bij 3,3m) garage/berging bereikbaar. U kunt dus altijd ‘droog’ naar de garage.
De garage heeft een tegelvloer en is voorzien van water, elektra en een dubbele deur naar de oprit. Aan de voorzijde van de woning bevindt zich een netjes aangelegde tuin en de oprit met kunststof carport. De oprit biedt plaats voor 2 auto’s.

Locatie
De woning is gelegen op korte afstand van het centrum van Nederweert dat op de fiets binnen een paar minuten te bereiken is. In het centrum treft u een ruim aanbod aan supermarkten, winkels, restaurants en terrasjes. Ook de basisschool en verschillende sportverenigingen liggen ‘om de hoek’.
Tenslotte zijn uitvalswegen richting Roermond en Venlo en de snelweg A2, richting Eindhoven en Maastricht, op enkele autominuten afstand bereikbaar.

Kenmerken

  • Woonoppervlakte 111 m2
  • Perceeloppervlakte 197 m2
  • Slaapkamers 4 kamers
  • Bouwjaar 2006
  • Energielabel A

Streetview

Street View preview
Klik om Street View te laden
Met koffie!

Kennismaken? Altijd gratis!

  • Wij gaan kijken of er een klik is, wel zo belangrijk!
  • Wij gaan kijken hoe we je het beste kunnen helpen.
  • Is alles duidelijk? Dan gaan wij voor jou aan de slag.

Vragen over onze mogelijkheden?

Loop even binnen of neem contact met ons op. Je kunt ook het contactformulier invullen, dan nemen wij zo snel mogelijk contact met jou op.

Vandaag bereikbaar van 09:00 tot 12:00

"*" geeft vereiste velden aan

Dit veld is bedoeld voor validatiedoeleinden en moet niet worden gewijzigd.