Vandaag bereikbaar van 09:00 tot 12:00
Koopwoningen

Ontdek jouw droomwoning

Omschrijving

Welkom in deze moderne en instapklare halfvrijstaande woning met eigen oprit en garage. Deze sfeervolle woning heeft een ruime aanbouw met luxe keuken, is energiezuinig en voorzien van alle gemakken! Geniet van optimale privacy in de royale en zonnige tuin. Deze woning biedt een ideale mix van comfort, stijl en duurzaamheid!

Indeling

Souterrain
Provisiekelder

Begane grond
hal/entree aan de voorzijde van de woning met meterkast en toegang tot provisiekelder. Ruime L-woonkamer met strakke wanden en laminaatvloer. Open verbinding naar de grote aanbouw met schuifpui naar de tuin en grote lichtkoepel. In de aanbouw bevindt zich de moderne keuken met vaste kastenwand en kookeiland. De inbouwkeuken heeft een inductiekookplaat, afzuigkap, combi-magnetron, koelkast en vaatwasser. Aansluitend de berging met vaste kasten en de aansluitingen van het witgoed. Tevens bevindt zich hier de toiletruimte.

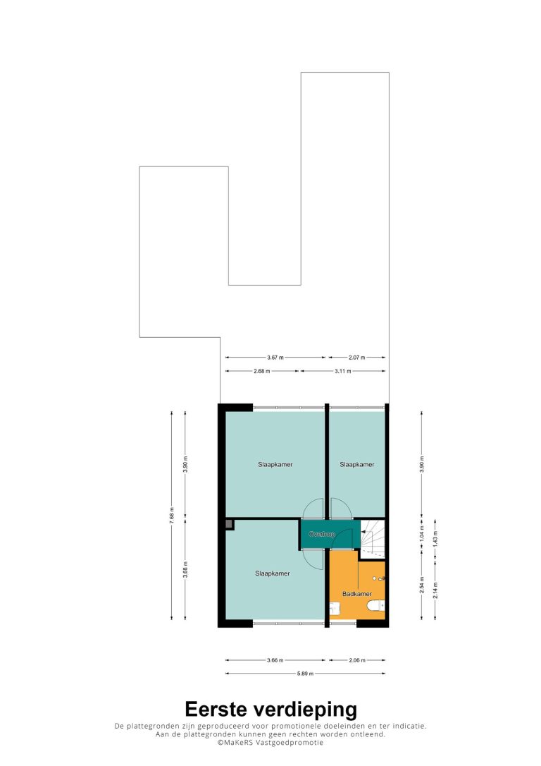
1e verdieping
Overloop, drie slaapkamers, waarvan één is voorzien van rolluik en airconditioning en de moderne badkamer. De badkamer heeft en inloopdouche, toilet en vaste wastafel met badkamermeubel, en designradiator.

Garage en oprit
De woning beschikt over een eigen oprit, waar ruimschoots plek is om een auto te parkeren. De garage is recent volledig opgeknapt waarbij het plafond en de muren zijn geïsoleerd. Aan de voorzijde is er een elektrische sectionaal deur, tevens is er een loopdeur naar de tuin.

Tuin
Voortuin en netjes en onderhoudsvriendelijk aangelegd. De achtertuin is verrassend groot en heeft een terras, overdekt terras en gazon. De tuin is geheel omheind met schutting. Door de ligging aan een grote openbare groenvoorziening heeft u optimale privacy in de tuin. Er is een poortje vanuit de tuin naar het achtergelegen speelveld.

Aandachtspunten:
– modern en instapklaar!
– optimale privacy in de tuin, geen achterburen
– energielabel B
– het dak van de woning is in 2022 volledig vervangen
– de grote aanbouw en keuken zijn in 2018 gerealiseerd
– vloerverwarming in de aanbouw
– de spouw is na-geïsoleerd
– en de woning is volledig voorzien van kunststof kozijnen met dubbele beglazing

Kenmerken

  • Woonoppervlakte 129 m2
  • Perceeloppervlakte 322 m2
  • Slaapkamers 3 kamers
  • Bouwjaar 1959
  • Energielabel B
Met koffie!

Kennismaken? Altijd gratis!

  • Wij gaan kijken of er een klik is, wel zo belangrijk!
  • Wij gaan kijken hoe we je het beste kunnen helpen.
  • Is alles duidelijk? Dan gaan wij voor jou aan de slag.

Vragen over onze mogelijkheden?

Loop even binnen of neem contact met ons op. Je kunt ook het contactformulier invullen, dan nemen wij zo snel mogelijk contact met jou op.

Vandaag bereikbaar van 09:00 tot 12:00

"*" geeft vereiste velden aan

Dit veld is bedoeld voor validatiedoeleinden en moet niet worden gewijzigd.