Vandaag bereikbaar van 09:00 tot 12:00
Koopwoningen

Ontdek jouw droomwoning

Omschrijving

Op een uitstekende, centrale locatie op loopafstand van het centrum en alle voorzieningen gelegen bieden wij te koop aan deze royale, uitgebouwde en in lichte kleurstellingen afgewerkte halfvrijstaande woning met een ruime inpandige garage van ca 6 bij 4 meter en een totaal woonoppervlak van 148m2.

De woning is ten tijde van de bouw voorzien van dak-/spouw- en vloerisolatie en hardhoutenkozijnen met HR-glas. De HR cv-combiketel (Itho Daalderop) is geplaatst in 2014. Recent, in oktober 2023, zijn er 9 zonnepanelen geplaatst met een opbrengst van ca. 3.500 kWh. Dit alles resulteert in een energielabel A !

Op de begane grond biedt deze woning in de ruime L-vormige woonkamer en de uitgebouwde leefkeuken maar liefst ca 62m2 woonoppervlak. De royale garage (ca 24m2) is inpandig bereikbaar. Op de verdieping bevinden zich 3 mooie slaapkamers, de complete badkamer en een separate toiletruimte. De 2e verdieping biedt mogelijkheden voor een extra slaapkamer / kantoor of hobbyruimte.

Belangrijkste kenmerken:
+ gebouwd in 1998
+ lengte van woonkamer met uitgebouwde keuken bijna 13m !
+ dak-/muur- en vloerisolatie
+ hardhouten kozijnen met HR-glas
+ 9 zonnepanelen (2023)
+ energielabel A
+ totale woonoppervlak ca. 148m2
+ inpandig bereikbare garage (ca .6 x 4 m)
+ lichte afwerking
+ vloer begane grond voorzien van parket (eiken) en verdieping pvc
+ perceel 273 m2
+ privacy in achtertuin
+ uitstekende, centrale locatie
+ speelveldje & groenvoorziening in de buurt

Indeling

Begane grond
Overdekte entree gelegen in de zijgevel van de woning. Ruime ontvangsthal met meterkast en geheel betegelde toiletruimte voorzien van toilet en fonteintje. Aan de voorzijde van de woning bevindt zich de ruime L-vormige woonkamer met veel daglicht middels de royale raampartijen en erker. Aan de achterzijde de in 2014 uitgebouwde leefkeuken met moderne hoekopgestelde keukenopstelling (2014). De witte hoogglans keuken is voorzien van alle gemakken voorzien zoals een inductiekookplaat, afzuigkap, vaatwasser, oven, magnetron, koelkast en meer dan voldoende berg- en werkruimte. Via een dubbele openslaande deur is de achtertuin met overkapping bereikbaar. De ruime geïsoleerde garage is vanuit de keuken inpandig bereikbaar en beschikt over dubbele openslaande geïsoleerde deuren naar de ruime voorliggende oprit.

Eerste verdieping
Royale overloop. De ruime ouderslaapkamer (ca. 4,75 x 3,40m) met kastenwand is gelegen aan de voorzijde van de woning en biedt toegang tot het aan de voorzijde gelegen balkon. Daarnaast 2 kinderkamers van resp.ca. 4 x 2m (gelegen aan de voorzijde) en 3,50 x 2,70m met inbouwkast (gelegen aan de achterzijde). De ruime geheel betegelde badkamer is voorzien van ligbad, douchecabine, dubbele wastafel en radiator. Pluspunt is de separaat gelegen, geheel betegelde toiletruimte met fonteintje.

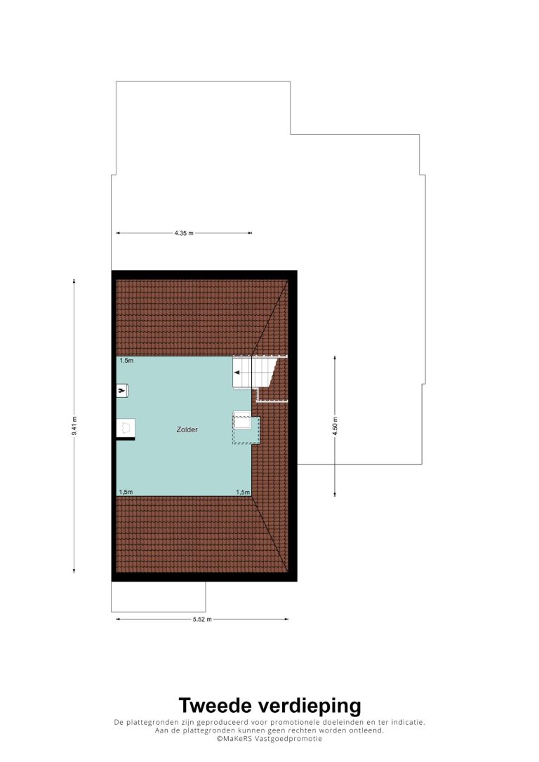
Tweede verdieping
Via vaste trap bereikbare zolder met dakraam, aansluiting voor wasmachine / droger en de opstelling van de combi cv-ketel. Hier kan een vierde slaap-/ hobby- of werkkamer worden gerealiseerd. Door het plaatsen van een dakkapel staat er nog extra ruimte.

Tuin
De onderhoudsarme, privacybiedende achtertuin is gelegen op het noordwesten, aangelegd met borders en terras en voorzien van een grote glazen aluminium tuinoverkapping. De tuinoverkapping biedt veel zitruimte en is voorzien van zonwering. De voortuin is eveneens onderhoudsarm aangelegd en heeft een oprit met ruimte voor twee auto’s.

Locatie en wijk
De woning is centraal gelegen met 2 basisscholen op korte loopafstand van de woning. Om de hoek bevinden zich een groenvoorziening en een speelveldje. Het centrum van Nederweert met al haar voorzieningen is eveneens op korte loop-/fietsafstand te bereiken.
Tenslotte zijn uitvalswegen richting Roermond en Venlo en de snelweg A2, richting Eindhoven en Maastricht, op enkele autominuten afstand bereikbaar.

Kortom, een ideale gezinswoning met o.a. de basisschool en het centrum op een steenworp afstand en de mogelijkheid om in de toekomst wellicht alle voorzieningen te realiseren op de begane grond.

Kenmerken

  • Woonoppervlakte 148 m2
  • Perceeloppervlakte 273 m2
  • Slaapkamers 3 kamers
  • Bouwjaar 1998
  • Energielabel A

Streetview

Street View preview
Klik om Street View te laden
Met koffie!

Kennismaken? Altijd gratis!

  • Wij gaan kijken of er een klik is, wel zo belangrijk!
  • Wij gaan kijken hoe we je het beste kunnen helpen.
  • Is alles duidelijk? Dan gaan wij voor jou aan de slag.

Vragen over onze mogelijkheden?

Loop even binnen of neem contact met ons op. Je kunt ook het contactformulier invullen, dan nemen wij zo snel mogelijk contact met jou op.

Vandaag bereikbaar van 09:00 tot 12:00

"*" geeft vereiste velden aan

Dit veld is bedoeld voor validatiedoeleinden en moet niet worden gewijzigd.