Vandaag bereikbaar van 08:30 tot 12:30 en van 13:30 tot 17:30
Koopwoningen

Ontdek jouw droomwoning

Omschrijving

Deze ruime halfvrijstaande woning met aangebouwde multifunctionele ruimte en inpandige garage ligt in een rustige, geliefde woonwijk in Ospel. Dankzij slimme indeling, airco op beide woonlagen, 8 zonnepanelen en energielabel C (afgegeven vóór de duurzame upgrades), biedt deze woning comfort én energiebesparing in één.

Extra fijn: met enkele eenvoudige aanpassingen is de woning levensloopbestendig te maken. De multifunctionele ruimte op de begane grond leent zich uitstekend als slaapkamer met aangrenzende badkamer (zie optionele plattegrond). Uiteraard is deze ruimte ook perfect in te richten als speelkamer, tuinkamer of thuiswerkplek.

Indeling
Begane grond
Entree via de hal met meterkast en moderne toiletruimte (zwevend toilet met fonteintje). De lichte, ruime woonkamer is voorzien van een gezellige open haard en staat in open verbinding met de keuken.
De keuken is uitgerust met inbouwapparatuur: koelkast, vaatwasser, oven, gasfornuis en afzuigkap.

Via een tussenportaal zijn zowel de inpandige garage als de multifunctionele ruimte bereikbaar. Deze extra kamer is multifunctioneel inzetbaar en biedt volop mogelijkheden – van werkkamer tot slaapkamer. Door hier een douche en wastafel te realiseren, maakt u de woning eenvoudig levensloopbestendig.

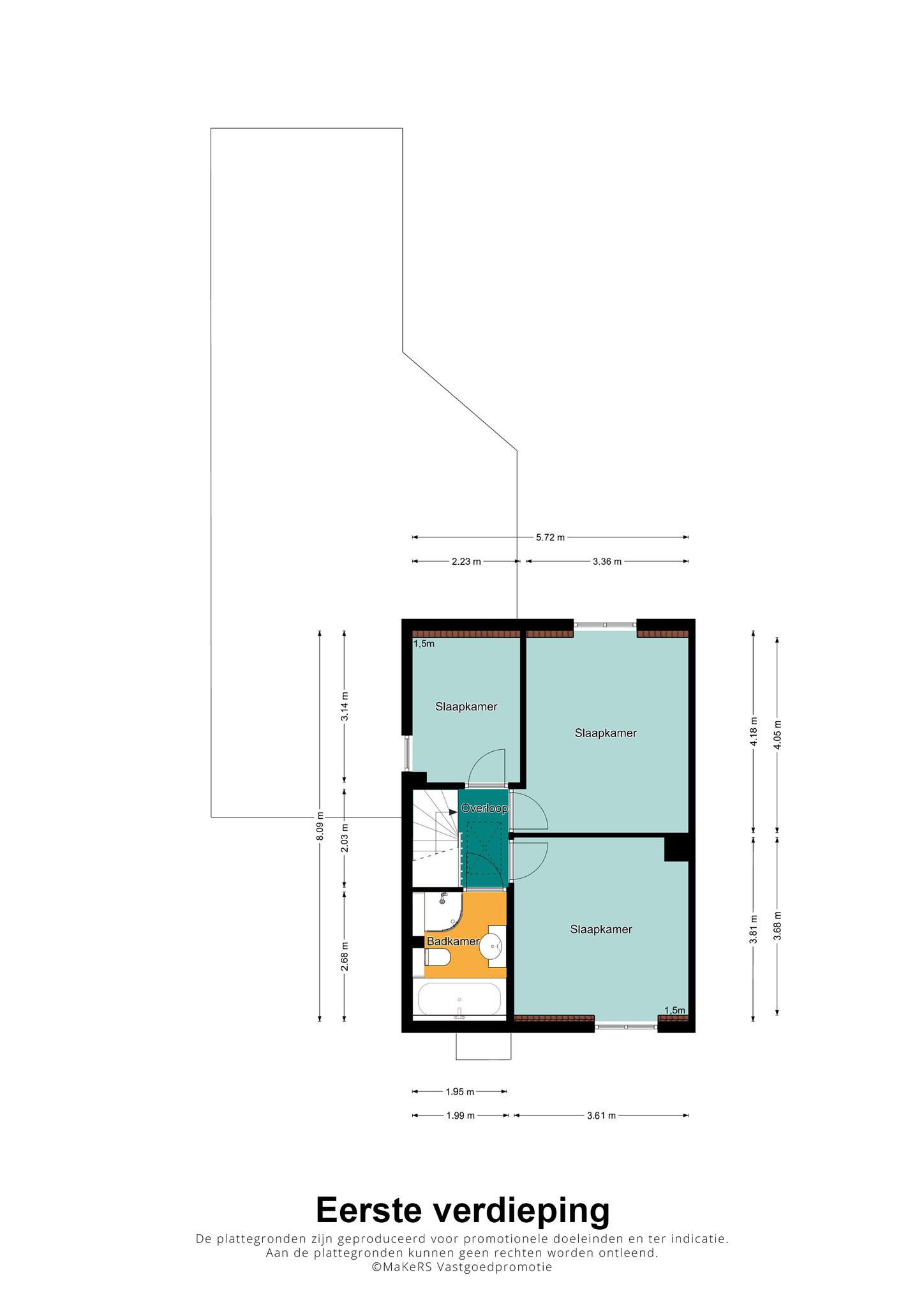
1e verdieping
Overloop met toegang tot drie keurig afgewerkte slaapkamers, allen voorzien van parketvloeren en rolluiken. De moderne badkamer beschikt over een ligbad, aparte douche, toilet en een wastafel met meubel.

2e verdieping
Via een vlizotrap bereikt u de praktische zolderverdieping met velux dakraam. Hier bevindt zich de opstelling van de Nefit combiketel (2021) en volop bergruimte.

Buitenruimte
De woning beschikt over een verzorgde voor- en achtertuin. De recent opnieuw aangelegde achtertuin ligt op het zuidwesten en is voorzien van een royaal terras met zonneluifel en heeft een tuinberging – een heerlijke plek om in alle rust te genieten van de middagzon.

Garage en oprit
De garage is binnendoor bereikbaar en voorzien van dubbele kunststof deuren, elektra, verwarming en water. Hier bevinden zich tevens de witgoedaansluitingen. Voor de garage ligt een ruime oprit met parkeergelegenheid voor twee auto’s.

Ospel en omgeving
Ospel is een rustig en landelijk gelegen dorp in de gemeente Nederweert, met voorzieningen zoals een supermarkt, basisschool, kapper en tandarts binnen handbereik. Daarnaast is er een actief verenigingsleven, waaronder een voetbalclub en carnavalsvereniging. De natuurrijke omgeving biedt volop mogelijkheden om te wandelen en fietsen.

De ligging is gunstig: in circa 10 minuten bereikt u de A2 (Maastricht – Eindhoven). Ook steden als Helmond, Venlo en Roermond zijn goed bereikbaar. Het dichtstbijzijnde NS-station vindt u in Weert.

De woning in het kort:
– Halfvrijstaande woning met garage en multifunctionele ruimte
– Mogelijkheid tot levensloopbestendig wonen
– Airco op beide verdiepingen
– 8 zonnepanelen
– Energielabel C (voor plaatsing zonnepanelen en airco)
– Tuin op het zuidwesten, recent vernieuwd
– Rustige ligging in geliefde woonwijk

Op zoek naar een ruime en duurzame woning met volop mogelijkheden? Maak dan snel een afspraak voor een bezichtiging!

Kenmerken

  • Woonoppervlakte 122 m2
  • Perceeloppervlakte 252 m2
  • Slaapkamers 4 kamers
  • Bouwjaar 1983
Met koffie!

Kennismaken? Altijd gratis!

  • Wij gaan kijken of er een klik is, wel zo belangrijk!
  • Wij gaan kijken hoe we je het beste kunnen helpen.
  • Is alles duidelijk? Dan gaan wij voor jou aan de slag.

Vragen over onze mogelijkheden?

Loop even binnen of neem contact met ons op. Je kunt ook het contactformulier invullen, dan nemen wij zo snel mogelijk contact met jou op.

Vandaag bereikbaar van 08:30 tot 12:30 en van 13:30 tot 17:30

"*" geeft vereiste velden aan

Dit veld is bedoeld voor validatiedoeleinden en moet niet worden gewijzigd.