Vandaag bereikbaar van 09:00 tot 12:00
Koopwoningen

Ontdek jouw droomwoning

Omschrijving

Moderne halfvrijstaande woning met aanbouw, garage en recent vernieuwde achtertuin – instapklaar en sfeervol wonen!

Ben je op zoek naar een instapklare woning met een eigentijdse uitstraling en volop comfort? Dan is deze prachtige halfvrijstaande woning precies wat je zoekt! Met een stijlvolle inrichting, een recent opgeknapte tuin mét sfeervolle pergola, een volledig gerenoveerde garage en duurzame voorzieningen zoals 12 zonnepanelen, is dit het ideale thuis voor mensen die zorgeloos willen verhuizen.

Deze woning combineert ruimte, comfort en duurzaamheid en ligt in een prettige, groene omgeving met sportvelden, school en winkels in de buurt.

Begane grond – licht, modern en praktisch

Via de ruime hal met meterkast en moderne toiletruimte kom je in de lichte woonkamer. De mooie erker aan de voorzijde zorgt voor veel natuurlijke lichtinval en geeft het geheel een gezellige uitstraling.
De moderne keuken heeft een inductiekookplaat, afzuigkap, koelkast, combi-oven en vaatwasser, ideaal voor kookliefhebbers.

Aansluitend vind je de tuinkamer: een heerlijke plek om te relaxen, te werken of te dineren met uitzicht op de fraai aangelegde tuin.
Alle vloeren zijn voorzien van moderne tegelvloer met vloerverwarming.

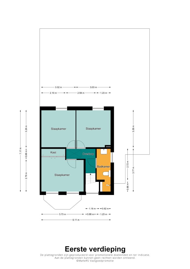
Eerste verdieping – comfortabel en compleet

Op de eerste verdieping vind je drie fijne slaapkamers en een moderne badkamer (2011) met inloopdouche, wastafelmeubel, toilet en vloerverwarming.
Alle kozijnen zijn hier vervangen door kunststof kozijnen met HR++ glas, waardoor de woning goed geïsoleerd en onderhoudsarm is.

Tweede verdieping – extra ruimte

Via een vlizotrap bereik je de ruime zolder. Hier bevindt zich de Nefit combiketel (2020) en er is volop ruimte voor opslag.

Berging/bijkeuken & carport – multifunctioneel en netjes afgewerkt

De inpandig bereikbare garage is recent volledig opgeknapt en geïsoleerd en omgebouwd tot ruime bijkeuken. De ruimte is voorzien van tegelvloer, verwarming en wateraansluiting.
Aansluitend kom je bij de carport, die met een elektrisch rolluik kan worden afgesloten – ideaal voor auto of fietsen.

Tuin – gezellig buiten genieten

De achtertuin is recent vernieuwd en volledig omsloten, zodat je privacy en rust hebt. Achterin staat een sfeervolle pergola, perfect voor gezellige avonden met vrienden of familie.
Aansluitend aan de woning bevindt zich tevens een groot overdekt terras, zodat je ook op minder zonnige dagen buiten kunt zitten.

Pluspunten op een rij:
+ Instapklaar en modern afgewerkt
+ 12 zonnepanelen – energiezuinig wonen
+ Fraai aangelegde tuin met pergola en overkapping
+ Volledig geïsoleerde garage met witgoedaansluitingen
+ Kunststof kozijnen met HR++ glas op de eerste verdieping
+ Vloerverwarming op de begane grond en in de badkamer
+ Carport met elektrisch rolluik
+ Spouwmuur- en dakisolatie
+ Nefit CV-ketel uit 2020

Deze woning is helemaal klaar voor de toekomst en biedt alles wat je nodig hebt: duurzaamheid, comfort en sfeer. Een perfecte match voor wie op zoek is naar een modern thuis met karakter.

Kenmerken

  • Woonoppervlakte 129 m2
  • Perceeloppervlakte 303 m2
  • Slaapkamers 3 kamers
  • Bouwjaar 1972
  • Energielabel B
Met koffie!

Kennismaken? Altijd gratis!

  • Wij gaan kijken of er een klik is, wel zo belangrijk!
  • Wij gaan kijken hoe we je het beste kunnen helpen.
  • Is alles duidelijk? Dan gaan wij voor jou aan de slag.

Vragen over onze mogelijkheden?

Loop even binnen of neem contact met ons op. Je kunt ook het contactformulier invullen, dan nemen wij zo snel mogelijk contact met jou op.

Vandaag bereikbaar van 09:00 tot 12:00

"*" geeft vereiste velden aan

Dit veld is bedoeld voor validatiedoeleinden en moet niet worden gewijzigd.