Vandaag bereikbaar van 09:00 tot 12:00
Koopwoningen

Ontdek jouw droomwoning

Omschrijving

Deze halfvrijstaande woning met garage en carport biedt je de perfecte combinatie van modern comfort en gezelligheid. Deze prachtig gerenoveerde woning heeft niet alleen een stijlvolle inrichting en een zonovergoten tuin, maar ook duurzame kenmerken zoals zonnepanelen en isolatie.
Een heerlijk thuis voor het hele gezin, slechts een steenworp verwijderd van het gezellige centrum van Nederweert.

Eikenstraat 7 in het kort:
– geheel voorzien van kunststof kozijnen en HR++ beglazing
– dak, spouw en vloer zijn nageïsoleerd
– de woning is voorzien van 9 zonnepanelen
– moderne keuken en badkamer
– strakke wanden, plafonds en vloeren
– vrije achterom naar de tuin
– heerlijk zonnige tuin met grote tuinkamer

Indeling

Begane grond
Hal met meterkast, moderne toiletruimte en verdiepte kelderkast, grote uitgebouwde keuken met strakke inbouwkeuken van 2020. De keuken heeft een gasfornuis, combi-oven, koelkast en vaatwasser. Aansluitend de sfeervolle woonkamer met grote raampartijen en houten vloer.

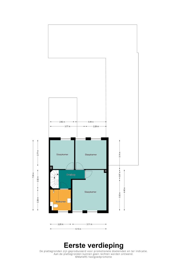
1e verdieping
Overloop, drie ruime slaapkamers en moderne badkamer van 2018. De badkamer heeft een inloopdouche, vaste wastafel, designradiator en toilet. De hoofdslaapkamer is voorzien van airco.

2e verdieping
Via de vaste trap is de tweede verdieping te bereiken. Hier komt u boven op de overloop met aan beide zijden een bergruimte en de grote zolderkamer.

Tuin
De voor- en achtertuin zijn onderhoudsvriendelijk aangelegd. De achtertuin is middels een vrije achterom te bereiken. Hier bevindt zich de grote tuinkamer, van 9,5 x 3,5 meter. Volledig afgesloten met glazen schuifdeuren en voorzien van elektra, water en afvoer.

Garage en carport
De woning heeft een ruime carport en garage. De garage heeft een elektrische sectionaal deur, deuren en ramen zijn vervangen in 2022 en ook het plat dak is recent vernieuwd.

Over Nederweert en omgeving
Het centrum van Nederweert met haar winkelaanbod en gezellige restaurantjes met terrasjes ligt op loofstand van deze woning. De woning is gelegen in een kindvriendelijke buurt, met speeltuintjes, basisschool en sportpark in de directe nabijheid. De op- en afrit van de A2 richting Eindhoven en Maastricht is binnen 5 minuten te bereiken, net als verbindingswegen richting Helmond, Venlo en Roermond.

Kenmerken

  • Woonoppervlakte 123 m2
  • Perceeloppervlakte 250 m2
  • Slaapkamers 4 kamers
  • Bouwjaar 1972
  • Energielabel B

Streetview

Street View preview
Klik om Street View te laden
Met koffie!

Kennismaken? Altijd gratis!

  • Wij gaan kijken of er een klik is, wel zo belangrijk!
  • Wij gaan kijken hoe we je het beste kunnen helpen.
  • Is alles duidelijk? Dan gaan wij voor jou aan de slag.

Vragen over onze mogelijkheden?

Loop even binnen of neem contact met ons op. Je kunt ook het contactformulier invullen, dan nemen wij zo snel mogelijk contact met jou op.

Vandaag bereikbaar van 09:00 tot 12:00

"*" geeft vereiste velden aan

Dit veld is bedoeld voor validatiedoeleinden en moet niet worden gewijzigd.