Vandaag bereikbaar van 09:00 tot 12:00
Koopwoningen

Ontdek jouw droomwoning

Omschrijving

Op zoek naar een ruime en veelzijdige woning op een fijne, kindvriendelijke locatie? Deze schitterende gezinswoning aan de Brandstraat 9 in het Weerter kerkdorp Laar heeft alles wat je nodig hebt!
Met een royale indeling, sfeervolle tuinkamer, vaste trap naar de zolder en een diepe achtertuin op een perceel van maar liefst 347 m² biedt deze woning volop mogelijkheden voor comfortabel wonen. Gebouwd in 2000 en volledig geïsoleerd, is het een energiezuinige woning met een moderne uitstraling.
Gelegen op loopafstand van de basisschool en met uitstekende verbindingen naar het stadscentrum van Weert, NS-station en snelweg A2, woon je hier heerlijk centraal én rustig.

De woning in het kort:
– ruim opgezette woning
– vaste trap naar de zolder
– de zolder is niet meegerekend in de woonoppervlakte
– volledig geïsoleerd, bouwjaar 2000
– sfeervolle tuinkamer
– diepe achtertuin, totale perceel is 347 m2

Indeling

Begane grond
Hal met meterkast, toiletruimte en kastruimte onder de trap, ruime L-woonkamer met sfeervolle erker aan de voorzijde en open keuken. De inbouwkeuken is voorzien van gasfornuis, combi-oven en vaatwasser. De woonkamer en keuken zijn voorzien van vloerverwarming.
Aansluitende ligt de mooie tuinkamer, deze tuinkamer biedt extra leefruimte en een heerlijk tuincontact. Vanuit de tuinkamer is de garage bereikbaar.

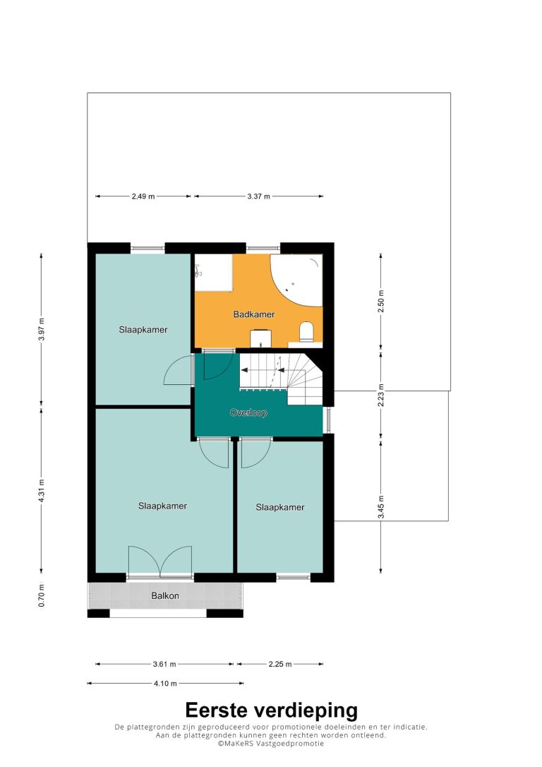
1e verdieping
Overloop met drie ruime slaapkamers en de badkamer. Eén slaapkamer heeft een eigen balkon. De ruime badkamer heeft een ligbad, douche, vaste wastafel en toilet.

2e verdieping
Via vaste trap is de tweede verdieping bereikbaar. Hier bevindt zich de opstelling van de cv-ketel en de witgoedaansluitingen.
Omdat het raam in de zijgevel nèt te klein is, telt deze ruimte op dit moment niet mee in de woonoppervlakte. Door de toevoeging van een dakraam is dit al opgelost. Deze verdieping biedt de mogelijkheid tot het realiseren van een 4e slaapkamer, thuiswerkplek of hobbyruimte.

Garage en carport
De garage is via de tuinkamer bereikbaar. Er is voldoende bergruimte, een keukenblok met wateraansluiting en een elektrische sectionaaldeur. Aan de voorzijde een praktische carport.

Tuin
Keurig aangelegde voor- en achtertuin. Vanuit de tuinkamer is er een heerlijk tuincontact. Middels glazenschuifdeuren is de tuinkamer ook als overkapping te gebruiken. De achtertuin is modern aangelegd met tweede terras achterin de tuin, borders en volwassen beplanting.

Over Laar en omgeving
Deze woning is gelegen op een rustige en kindvriendelijke locatie in het Weerter kerkdorp Laar, op loopafstand van de basisschool. Het Weerter stadscentrum en NS-Intercitystation zijn binnen enkele minuten bereikbaar. Vanuit de woning is er tevens een uitstekende verbinding naar de autosnelweg A2 Maastricht – Eindhoven en diverse belangrijke uitvalswegen. Binnen ‘no time’ sta je in het mooie Weerterbos met wandelroutes, fietspaden en gezellige horeca.

Kenmerken

  • Woonoppervlakte 105 m2
  • Perceeloppervlakte 347 m2
  • Slaapkamers 3 kamers
  • Bouwjaar 2000
  • Energielabel A

Streetview

Street View preview
Klik om Street View te laden
Met koffie!

Kennismaken? Altijd gratis!

  • Wij gaan kijken of er een klik is, wel zo belangrijk!
  • Wij gaan kijken hoe we je het beste kunnen helpen.
  • Is alles duidelijk? Dan gaan wij voor jou aan de slag.

Vragen over onze mogelijkheden?

Loop even binnen of neem contact met ons op. Je kunt ook het contactformulier invullen, dan nemen wij zo snel mogelijk contact met jou op.

Vandaag bereikbaar van 09:00 tot 12:00

"*" geeft vereiste velden aan

Dit veld is bedoeld voor validatiedoeleinden en moet niet worden gewijzigd.