Vandaag bereikbaar van 09:00 tot 12:00
Koopwoningen

Ontdek jouw droomwoning

Omschrijving

Op een uitstekende locatie, gelegen in de nieuwbouwwijk ‘Hoebenakker’, bieden wij te koop aan deze jonge, modern afgewerkte halfvrijstaande woning met garage en nieuwe carport (2024). De woning heeft op de begane grond een moderne keuken met schiereiland aan de voorzijde en een uitgebouwde woonkamer aan de achterzijde. Op de verdieping 3 slaapkamers met luxe badkamer en een vaste trap naar de 2e verdieping met een extra kamer. 

Deze in 2015 gebouwde, halfvrijstaande gezinswoning is volledig geïsoleerd, heeft kunststof kozijnen met HR++glas en grotendeels rolluiken. Op de begane grond ligt een mooie lichte houtlook tegelvloer met vloerverwarming en in 2020 zijn er 12 zonnepanelen geplaatst. 
Hetgeen resulteert in een definitief energielabel A.

Belangrijkste kenmerken:
+ woonoppervlak ca. 134m2
+ veel woonoppervlak op begane grond (ca. 54 m2)
+ 4 slaapkamers
+ airco op overloop
+ geheel modern afgewerkt
+ energielabel A
+ jonge gezinswoning
+ gelegen in een nieuwbouwwijk
+ gelegen nabij speelveld en basisschool

Kortom een uitstekend afgewerkte woning voor een jong gezin !

Indeling

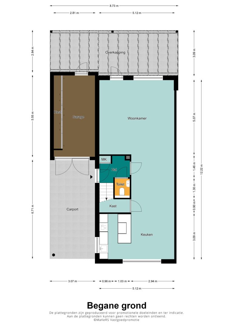
Begane grond
Via de oprit met parkeergelegenheid voor 2 auto’s, bereikt u de entree tot de woning gelegen in de zijgevel. Hal met meterkast en moderne toiletruimte voorzien van hangend toilet en fonteintje. De moderne eetkeuken aan de voorzijde van de woning met vaste kastenwand en schiereiland is voorzien van alle apparatuur zoals; keramische kookplaat, combi oven-magnetron (2022), afzuigkap, koelkast en vaatwasser (2021). De uitgebouwde woonkamer met veel lichtinval is gelegen aan de achterzijde van de woning.  

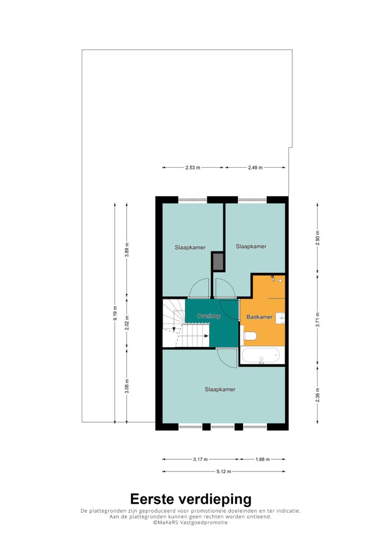
1e verdieping
De overloop is voorzien van airco. Ruime ouderslaapkamer gelegen aan de voorzijde van de woning en twee kinderslaapkamers, gelegen aan achterzijde van de woning. De complete, luxe badkamer is geheel betegeld en voorzien van inloopdouche, ligbad, badkamermeubel en hangend toilet. 

2e verdieping
Middels een vaste trap is de 2e verdieping bereikbaar. Hier bevindt zich de 4e slaapkamer en een berg-/wasruimte. De zolderkamer is voorzien van airco en een dakkapel aan de achterzijde. In de berg-/wasruimte bevinden zich de aansluitingen voor de wasmachine en droger en de opstelling combi-ketel en WTW-installatie. 

Garage en Tuin
De garage is voorzien van tegelvloer, deels muurisolatie en aan de voorzijde een dubbele openslaande deur naar de oprit met nieuwe carport (2024). De achtertuin is gelegen op het Oosten en biedt dan ook veel mogelijkheden om te genieten van de zon. De tuin is in 2023 opnieuw aangelegd, voorzien van nieuwe gepotdekselde schutting, kunstgras, borders en een terras met overkapping. 

Locatie
Hoebenakker is een jonge wijk, gebouwd vanaf ca. 2010, gelegen aan de noordzijde van Nederweert. Op loopafstand bevinden zich voorzieningen zoals basisschool en het dorpscentrum van Nederweert met diverse winkels en horecagelegenheden. De snelweg A2 (Maastricht-Eindhoven) is binnen enkele minuten bereikbaar.

Kenmerken

  • Woonoppervlakte 134 m2
  • Perceeloppervlakte 213 m2
  • Slaapkamers 4 kamers
  • Bouwjaar 2015
  • Energielabel A

Streetview

Street View preview
Klik om Street View te laden
Met koffie!

Kennismaken? Altijd gratis!

  • Wij gaan kijken of er een klik is, wel zo belangrijk!
  • Wij gaan kijken hoe we je het beste kunnen helpen.
  • Is alles duidelijk? Dan gaan wij voor jou aan de slag.

Vragen over onze mogelijkheden?

Loop even binnen of neem contact met ons op. Je kunt ook het contactformulier invullen, dan nemen wij zo snel mogelijk contact met jou op.

Vandaag bereikbaar van 09:00 tot 12:00

"*" geeft vereiste velden aan

Dit veld is bedoeld voor validatiedoeleinden en moet niet worden gewijzigd.