Vandaag bereikbaar van 09:00 tot 12:00
Koopwoningen

Ontdek jouw droomwoning

Omschrijving

Op zoek naar een instapklare woning met veel leefruimte, een fijne tuin en een uitstekende energieprestatie? Deze moderne en goed onderhouden woning in de jonge wijk Merenveld combineert comfort, functionaliteit en duurzaamheid op een mooie manier. Met een royale woonkamer, vier (slaap)kamers, een praktische bijkeuken en een sfeervolle tuin is dit een ideaal huis voor wie ruimte én rust zoekt. De woning is volledig geïsoleerd, voorzien van HR++ beglazing, kunststof kozijnen, 15 zonnepanelen, zonneboiler én een airco-installatie. Dankzij de gunstige ligging nabij natuur, scholen, winkels en de A2 is het hier heerlijk wonen met alle voorzieningen binnen handbereik.

De woning in het kort:
– royale leefruimte op begane grond
– extra kamer op de tweede verdieping, ideaal als werkkamer of 4e slaapkamer
– gezellige en onderhoudsvriendelijke tuin
– volledig geïsoleerd, kunststof kozijnen met HR++ beglazing
– Energielabel A, 15 zonnepanelen en airco-installatie zijn na afgifte van het label geplaatst
– praktische berging/bijkeuken welke inpandig te bereiken is
– woonoppervlakte is 150 m2
– fijne brede oprit met carport

Indeling
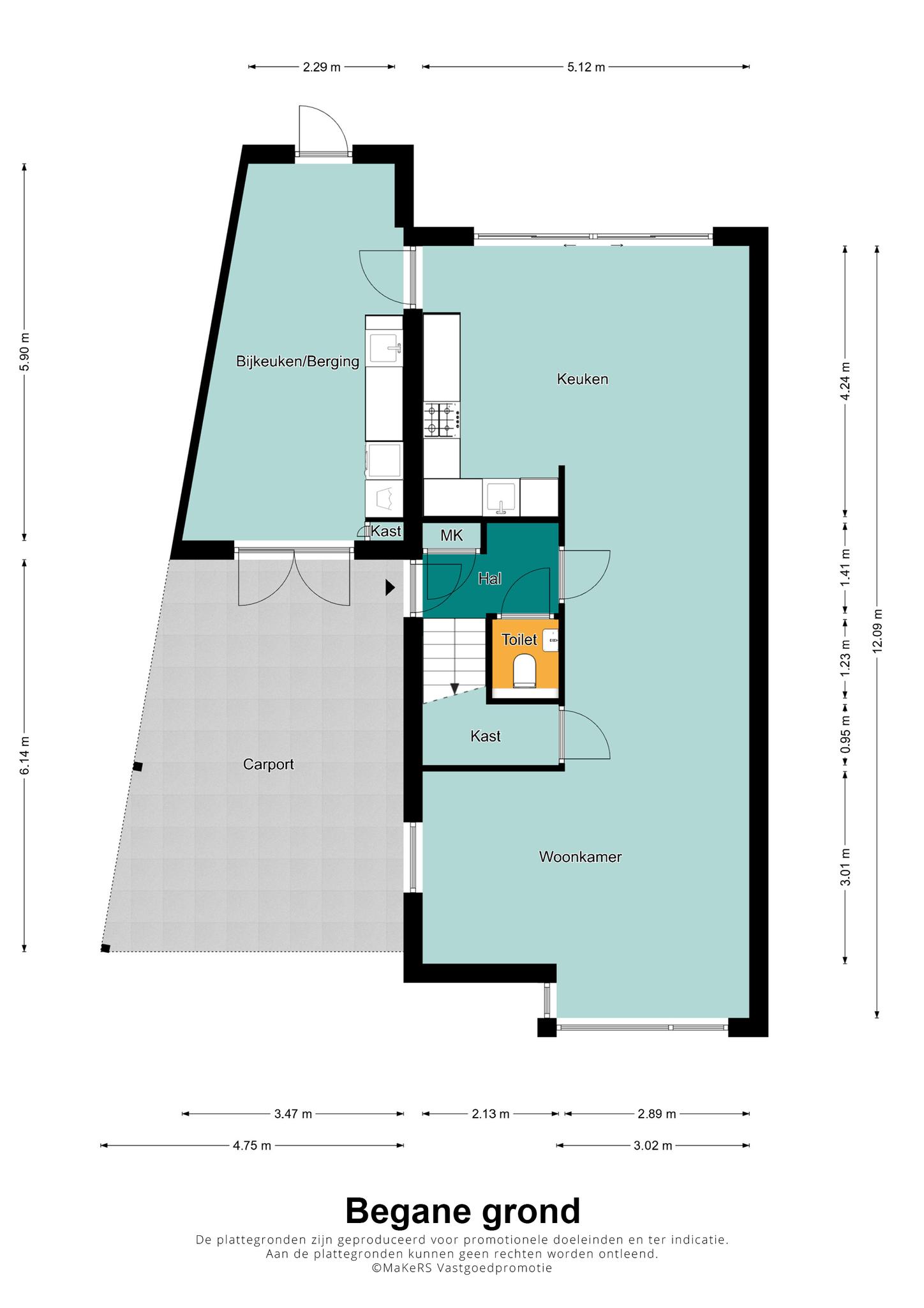
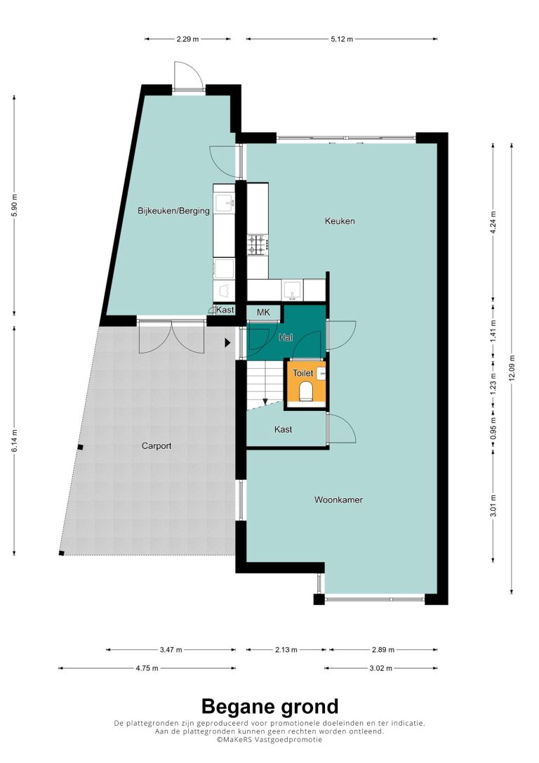
Begane grond
De entree is gelegen aan de zijkant van de woning. Via de hal, met meterkast en moderne toiletruimte (voorzien van hangend toilet en fonteintje), betreed je de royale L-vormige woonkamer. Deze is heerlijk licht dankzij de erker aan de voorzijde en de grote raampartij aan de achterzijde. Een praktische trapkast biedt extra bergruimte. De open keuken in hoekopstelling is voorzien van diverse inbouwapparatuur zoals een gasfornuis, combi-oven, koelkast en vaatwasser. Via dubbele schuifdeuren heb je toegang tot het terras en de tuin.
Grenzend aan de keuken bevindt zich de inpandig bereikbare berging/bijkeuken. Deze is keurig afgewerkt met een tegelvloer, gestuukte wanden en plafond, en beschikt over een keukenblok met warm- en koudwateraansluiting en witgoedaansluitingen. Vanuit hier zijn zowel de carport als de achtertuin bereikbaar.

Eerste verdieping
Op de eerste verdieping bevinden zich drie ruime slaapkamers. De badkamer is compleet uitgerust met een ligbad, aparte douche, tweede toilet en een vaste wastafel. Alle slaapkamers zijn voorzien van rolluiken.

Tweede verdieping
Via een vaste trap bereik je de tweede verdieping. Hier vind je een ruime overloop met extra bergruimte én een vierde kamer, ideaal als extra slaapkamer, logeerkamer of thuiskantoor. Dankzij de dakkapel is deze ruimte heerlijk licht. De airco-installatie is centraal op de overloop geplaatst.

Tuin
De voor- en achtertuin zijn met zorg en oog voor gemak aangelegd. De achtertuin is onderhoudsvriendelijk en beschikt over een gezellige zitplek onder de pergola, een tuinberging en biedt volop privacy. Een heerlijke plek om tot rust te komen of samen te genieten.

Locatie
De woning ligt in de jonge wijk Merenveld (gebouwd vanaf 2010) aan de noordzijde van Budschop. Voorzieningen zoals een basisschool, winkels, supermarkten en horeca bevinden zich op korte (loop)afstand in het centrum van Nederweert. Daarnaast ligt de woning op steenworp afstand van prachtige natuurgebieden zoals Sarsven – De Banen en De Groote Peel, waar je volop kunt wandelen en fietsen. De A2 is snel bereikbaar, waardoor steden als Eindhoven, Maastricht, Roermond en Helmond vlot te bereiken zijn.

Kenmerken

  • Woonoppervlakte 150 m2
  • Perceeloppervlakte 234 m2
  • Slaapkamers 4 kamers
  • Bouwjaar 2014
  • Energielabel A

Streetview

Street View preview
Klik om Street View te laden
Met koffie!

Kennismaken? Altijd gratis!

  • Wij gaan kijken of er een klik is, wel zo belangrijk!
  • Wij gaan kijken hoe we je het beste kunnen helpen.
  • Is alles duidelijk? Dan gaan wij voor jou aan de slag.

Vragen over onze mogelijkheden?

Loop even binnen of neem contact met ons op. Je kunt ook het contactformulier invullen, dan nemen wij zo snel mogelijk contact met jou op.

Vandaag bereikbaar van 09:00 tot 12:00

"*" geeft vereiste velden aan

Dit veld is bedoeld voor validatiedoeleinden en moet niet worden gewijzigd.