Vandaag bereikbaar van 09:00 tot 12:00
Koopwoningen

Ontdek jouw droomwoning

Omschrijving

Gelegen op een centrale locatie in de wijk Boshoven met supermarkt, bakker en basisschool op een steenworp afstand, bieden wij te koop aan deze goed onderhouden en aan de achterzijde uitgebouwde tussenwoning met 3 ruime slaapkamers en aan de voorzijde een vrij uitzicht over een brede groenstrook. 

Deze origineel in 1981 gebouwde tussenwoning met inpandige berging aan de voorzijde is in 1993 aan de achterzijde uitgebouwd. Deze uitbouw is in 2017 voorzien van een nieuwe, moderne keukenopstand met grote kastenwanden aan de zijkant en centraal een kookeiland met alle apparatuur. De verdiepingen bieden ruimte aan 3 royale slaapkamers en een nette badkamer.

De woning is voorzien van dak-, spouwmuur- & vloerisolatie, grotendeels vloerverwarming op de begane grond, aluminium kozijnen met HR-glas, een Nefit HR cv-combiketel (2014) en 11 zonnepanelen (gehuurd), hetgeen resulteert in een definitief energielabel B.

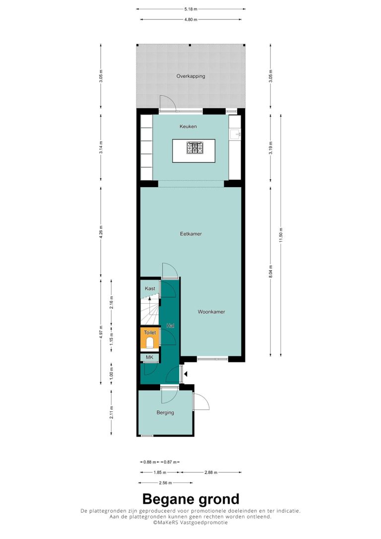
Indeling:

Begane grond.
Entree naar hal met meterkast, toegang tot de aan de voorzijde gelegen (fietsen-)berging en de geheel betegelde toiletruimte met hangend toilet. Aan het einde van de gang betreedt u de woonkamer met aangebouwde keuken. Laat u verrassen door de ruimte !.
Aan de voorzijde van de woning bevindt zich de zithoek. Aansluitend het eetgedeelte dat in open verbinding staat met de  aangebouwde keuken. Door de open verbinding met het eetgedeelte is deze keuken de ideale plek voor iemand die graag kookt voor vrienden en familie.
Aan een zijde bevindt zich een grote kastenwand met 2 koelkasten, een oven en stoomoven. Aan de andere zijde bevindt zich het spoelgedeelte met spoelbak, ‘quooker’, vaatwasser, granieten werkblad en wederom veel kastruimte. Centraal in het midden van de ruimte bevindt zich het kookeiland met 6-pits gaskookplaat, afzuigkap (in plafond), granieten werkblad, bergruimte in lades aan de ene zijde en een bar / zitgedeelte aan de andere zijde met zicht naar de tuin.

Eerste verdieping
Vanuit de overloop heeft u de toegang tot 2 royale slaapkamers (voorheen 3) en de badkamer. Slaapkamer 1, groot ca. 3.45 bij 2.90m,  is gelegen aan de voorzijde. Slaapkamer 2, groot ca. 4.8 bij 4.35m, is gelegen aan de achterzijde. Hier zouden evt. weer 2 slaapkamers van gemaakt kunnen worden. De badkamer is geheel betegeld en voorzien van badkamermeubel, toilet en douchecabine.

Tweede verdieping
Vaste trap naar de tweede verdieping. Vanuit de overloop heeft u toegang tot een bergkast en een bergruimte met opstelling van de cv-combiketel (2014) en de royale 3de slaapkamer. De slaapkamer is voorzien van een grote dakkapel aan de achterzijde. Hierdoor ontstaat een royale slaapkamer van ca. 14m2.

Tuin
De op het noordoosten gelegen achtertuin is onderhoudsvrij aangelegd met aansluitend aan de keuken een overkapping. Hier zit u in de zomer heerlijk in de schaduw, maar ook bij wat frissere weersomstandigheden kunt u hier al heerlijk zitten.
Vanuit de tuin heeft u rechtstreeks toegang tot de aan de achterzijde gelegen garage. Deze garage is gehuurd (€ 100 per maand).

Locatie 
Gelegen op een centrale locatie in de wijk Boshoven. De Supermarkt, bakker en basisschool liggen ‘om de hoek’.
Het Weerter stadscentrum is binnen 5-minuten met auto of fiets bereikbaar. In het stadscentrum vind u een uitgebreid aanbod aan winkels, supermarkten en restaurants en natuurlijk het NS-station.
De snelweg A2 richting Eindhoven & Maastricht en diverse uitvalswegen richting België, Roermond en Venlo zijn binnen enkele minuten te bereiken.

(dit alleen opnemen als zeker is dat starterslening is verhoogd)
! Starterlening !
Ben je op zoek naar je eerste koopwoning en kom je in aanmerking voor de gemeentelijke starterslening, dan kun je mogelijk maximaal 20% van de koopsom als starterslening financiering. De gemeente heeft recent de maximale koopsom van een woning om voor de starterslening in aanmerking te komen verhoogd naar € 310.000 !
Neem contact met ons kantoor voor meer informatie. We helpen graag met het aanvragen van de financiering en starterslening.)

Kenmerken

  • Woonoppervlakte 129 m2
  • Perceeloppervlakte 149 m2
  • Slaapkamers 3 kamers
  • Bouwjaar 1981
  • Energielabel B

Streetview

Street View preview
Klik om Street View te laden
Met koffie!

Kennismaken? Altijd gratis!

  • Wij gaan kijken of er een klik is, wel zo belangrijk!
  • Wij gaan kijken hoe we je het beste kunnen helpen.
  • Is alles duidelijk? Dan gaan wij voor jou aan de slag.

Vragen over onze mogelijkheden?

Loop even binnen of neem contact met ons op. Je kunt ook het contactformulier invullen, dan nemen wij zo snel mogelijk contact met jou op.

Vandaag bereikbaar van 09:00 tot 12:00

"*" geeft vereiste velden aan

Dit veld is bedoeld voor validatiedoeleinden en moet niet worden gewijzigd.