Vandaag bereikbaar van 08:30 tot 12:30 en van 13:30 tot 17:30
Koopwoningen

Ontdek jouw droomwoning

Omschrijving

Ben je op zoek naar een moderne, instapklare én energiezuinige hoekwoning?

Dan zou dit zomaar jouw nieuwe thuis kunnen zijn.

In de jonge wijk Steenenbampt in Ell staat deze fraaie hoekwoning uit 2020 te koop.

Binnen geniet je van een lichte woonkamer met open keuken. De luxe keuken met kookeiland is volledig uitgerust en beschikt zelfs over een ingebouwde wijnklimaatkast. Op de eerste verdieping vind je drie slaapkamers, waarvan één momenteel in gebruik is als inloopkast, maar eenvoudig weer te gebruiken is als slaapkamer. De moderne badkamer en het separate toilet maken de verdieping compleet. De vaste trap naar de tweede verdieping biedt extra mogelijkheden: hier realiseer je met gemak een vierde slaapkamer of werkkamer.
De woning is uitstekend geïsoleerd, heeft vloerverwarming op de begane grond en 11 zonnepanelen.

De belangrijkste kenmerken op een rijtje:
+ gebouwd in 2020
+ ruim perceel van 253m2
+ geheel geïsoleerd
+ 11 zonnepanelen (2022)
+ energielabel A
+ perfecte zonligging achtertuin (zuidwest)
+ vrijstaande garage
+ mogelijkheid om aan te bouwen
+ mogelijkheid om relatief eenvoudig extra woonoppervlak te creëren
+ modern en strakke afwerking dus instapklaar.

Indeling

Begane grond
De entree bevindt zich aan de zijkant van de woning. Vanuit de hal met meterkast en toiletruimte stap je de woonkamer met open keuken binnen. De keuken aan de voorzijde is uitgevoerd in hoogglans en voorzien van een kastenwand en kookeiland met o.a. inductiekookplaat met geïntegreerde afzuiging, vaatwasser, combi-oven/magnetron, close-in boiler, koelkast, vriesladenkast én wijnklimaatkast.
De woonkamer aan de achterzijde biedt veel lichtinval en direct contact met de tuin. Aansluitend bevindt zich een moderne tuinoverkapping (5,4 × 3 m). Dankzij het royale perceel is een uitbouw mogelijk, terwijl er toch een ruime achtertuin overblijft.

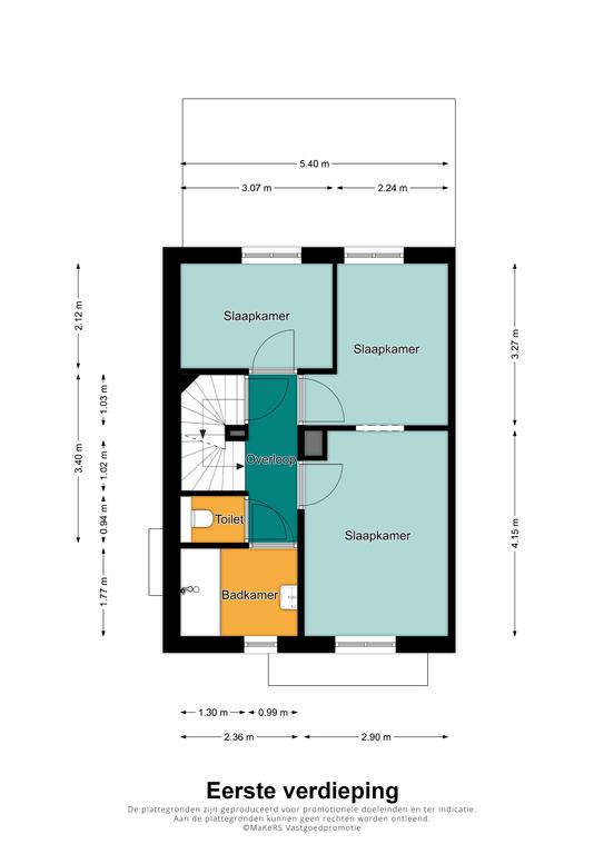
Eerste verdieping
Via de overloop bereik je de ouderslaapkamer met aangrenzende kleedkamer/inloopkast (makkelijk terug te brengen naar een slaapkamer), een tweede slaapkamer, een separate toiletruimte en de volledig betegelde badkamer. De moderne badkamer heeft een inloopdouche, wastafelmeubel en designradiator.

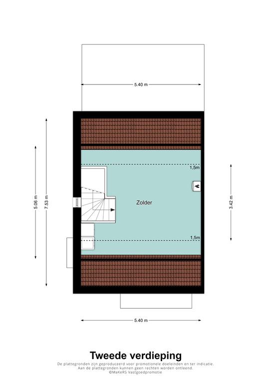
Tweede verdieping
Vaste trap naar de ruime bergzolder met cv-installatie (Intergas), WTW-systeem en wasmachine- en drogeraansluitingen. Deze verdieping biedt volop potentie: met een dakraam of dakkapel creëer je hier eenvoudig extra woonoppervlak in de vorm van een extra (4e) slaapkamer of werkruimte.

Tuin en garage
De achtertuin is gelegen op het westen–zuiden, waardoor je de hele dag kunt genieten van de zon. De tuin is verzorgd aangelegd met een terras, gazon en borders. Dankzij de ruimte is er plek voor speeltoestellen én mogelijkheden voor verdere uitbouw. Achterin staat de vrijstaande stenen garage met kantelpoort en oprit.

Locatie
De woning ligt in een jonge woonwijk aan de rand van Ell. Het dorp heeft een basisschool en winkels voor de dagelijkse boodschappen zoals een bakker, slager, buurtsuper en snackbar. De omgeving is landelijk en geliefd bij wandelaars en fietsers. De autosnelweg A2 richting Maastricht en Eindhoven, evenals de N280 naar Roermond, zijn binnen enkele autominuten te bereiken. Ook het Weerter stadscentrum en het NS-Intercitystation liggen op korte rijafstand.

Kenmerken

  • Woonoppervlakte 83 m2
  • Perceeloppervlakte 253 m2
  • Slaapkamers 2 kamers
  • Bouwjaar 2020
Met koffie!

Kennismaken? Altijd gratis!

  • Wij gaan kijken of er een klik is, wel zo belangrijk!
  • Wij gaan kijken hoe we je het beste kunnen helpen.
  • Is alles duidelijk? Dan gaan wij voor jou aan de slag.

Vragen over onze mogelijkheden?

Loop even binnen of neem contact met ons op. Je kunt ook het contactformulier invullen, dan nemen wij zo snel mogelijk contact met jou op.

Vandaag bereikbaar van 08:30 tot 12:30 en van 13:30 tot 17:30

"*" geeft vereiste velden aan

Dit veld is bedoeld voor validatiedoeleinden en moet niet worden gewijzigd.