Vandaag bereikbaar van 09:00 tot 12:00
Koopwoningen

Ontdek jouw droomwoning

Omschrijving

Midden in het levendige hart van Nederweert staat dit karakteristieke herenhuis: een thuis met uitstraling, ruimte en een eigen ziel. Dankzij de bijzondere bouwstijl, de vele authentieke elementen en de royale leefruimtes spreekt deze woning een brede doelgroep aan. Of je nu als gezin comfortabel wilt wonen of zoekt naar een sfeervolle plek om op je oude dag in het centrum te genieten. Hier komen charme en wooncomfort prachtig samen.

Indeling van de woning

Begane grond

Via de entree aan de zijkant stap je binnen in de ontvangsthal met tegelvloer en meterkast. Vanuit hier loop je door naar de royale woonkamer, waar de leisteenvloer, inbouwspots en het glas-in-lood direct de toon zetten: sfeervol, warm en karaktervol. De open haard met schouw vormt een mooi middelpunt van de ruimte. Dankzij de grote raampartijen geniet je hier van een zee aan daglicht. De tuinkamer, voorzien van lichtkoepel en grote ramen aan de tuinzijde, leent zich uitstekend als speelkamer, werkruimte of een rustige leeshoek.
Aansluitend bereik je de dichte woonkeuken, die is ingericht met een moderne keukenopstelling voorzien van een granieten werkblad en inbouwapparatuur. Twee mooie muurkasten, waaronder een stijlvolle servieskast met glas, zorgen voor extra opbergruimte. Vanuit de keuken heb je toegang tot zowel de kelder als de aanbouw. In deze aanbouw bevinden zich een praktische hal met bergruimte, een toiletruimte met fonteintje en een aparte wasruimte met witgoedaansluitingen en een extra wastafel.

Eerste verdieping

De prachtige bordestrap in de hal leidt naar de eerste verdieping. Vanaf de overloop zijn de drie ruime slaapkamers bereikbaar. Twee ervan beschikken over een laminaatvloer en een vaste kastenwand, de derde kamer heeft een gezellige plankenvloer. Aan de voorzijde bevindt zich een balkon dat via de overloop toegankelijk is. Een fijne plek voor een kop koffie in de ochtendzon. De badkamer is compleet uitgerust met een douche, hoekbad, toilet en wastafel.

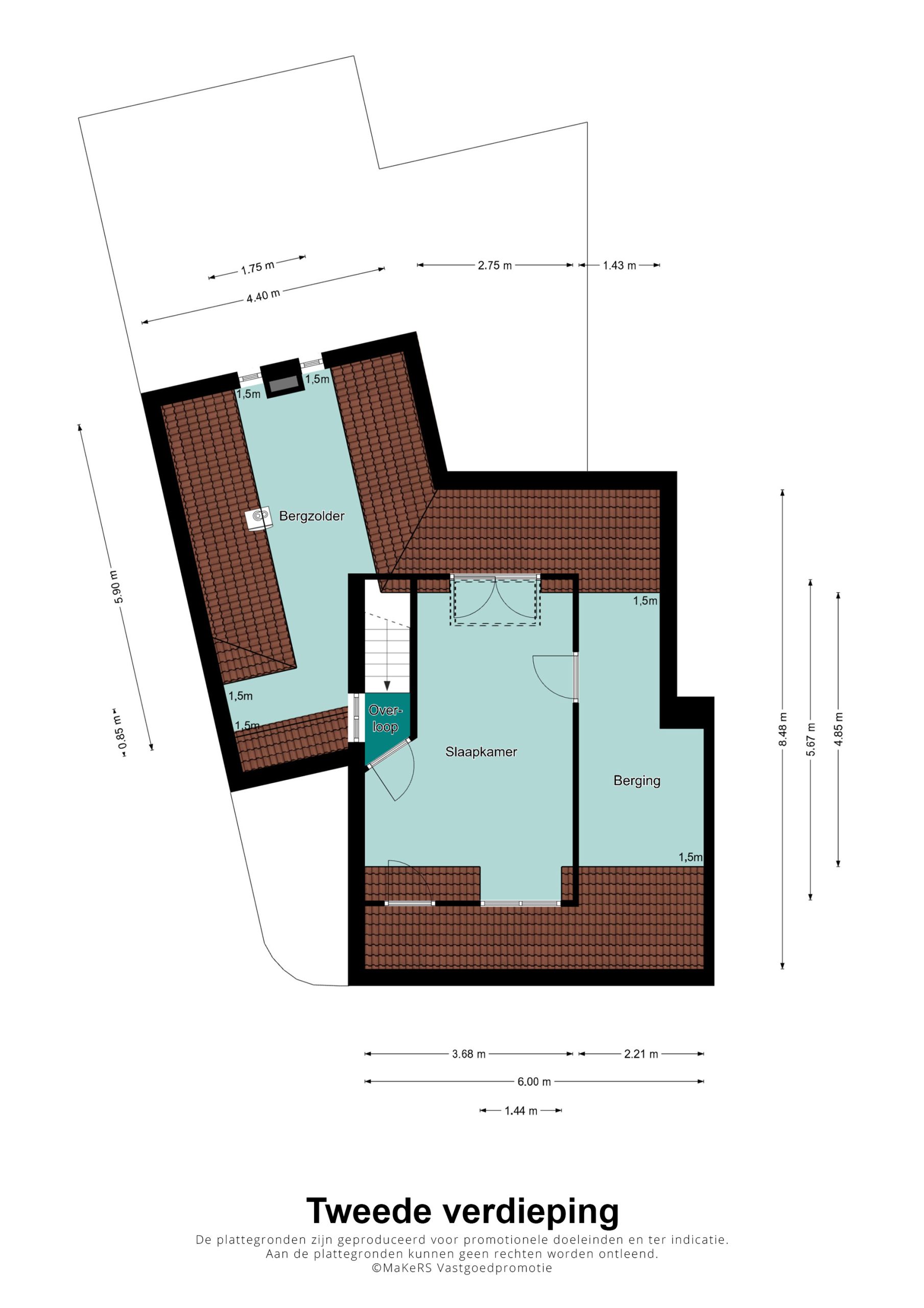
Tweede verdieping

Een vaste trap brengt je naar de tweede verdieping. Hier vind je een vierde slaapkamer met dakkapel en parketvloer, een ideale logeerkamer, tienerkamer of werkruimte. Daarnaast bevinden zich op deze verdieping nog twee royale bergruimtes.

Tuin, garage & carport

De verzorgde tuin is bereikbaar via een vrije achterom, de garage of de carport. De garage biedt plaats aan één auto en beschikt over elektriciteit en een rolpoort. De carport is uitgerust met een automatische sectionaalpoort, comfort en veiligheid gaan hier hand in hand. De tuin zelf is modern en onderhoudsvriendelijk aangelegd met borders, strakke antracietkleurige tegels, een vijver en een buitenoven. Dankzij de ligging op het zuidwesten kun je hier de hele dag genieten van de zon, terwijl de volledige omheining zorgt voor optimale privacy.

Locatie, omgeving & bereikbaarheid

Wonen aan de Kerkstraat is wonen in het bruisende hart van Nederweert. Je wandelt zo naar winkels, gezellige eetgelegenheden en diverse supermarkten. Voor dagelijkse voorzieningen hoef je de straat nauwelijks uit. Daarnaast ben je binnen vijf minuten op de A2 richting Eindhoven of Maastricht. Sfeervol, centraal en toch verrassend rustig, een ideale combinatie!

Belangrijkste kenmerken:
– Karakteristiek herenhuis vol authentieke details
– Het pand is een gemeentelijk monument
– Unieke bouwstijl met glas-in-lood en hoge plafonds
– Vier slaapkamers en veel extra leefruimte
– Royale living met lichte tuinkamer
– Moderne woonkeuken met apparatuur
– Onderhoudsvriendelijke tuin op het zuidwesten
– Garage én carport met automatische poort
– Centraal gelegen in hartje Nederweert

Een woning met een eigen identiteit én alle ruimte om heerlijk te wonen. Maak een afspraak voor een bezichtiging en ervaar het zelf!

Kenmerken

  • Woonoppervlakte 221 m2
  • Perceeloppervlakte 277 m2
  • Slaapkamers 4 kamers
  • Bouwjaar 1940
  • Energielabel C
Met koffie!

Kennismaken? Altijd gratis!

  • Wij gaan kijken of er een klik is, wel zo belangrijk!
  • Wij gaan kijken hoe we je het beste kunnen helpen.
  • Is alles duidelijk? Dan gaan wij voor jou aan de slag.

Vragen over onze mogelijkheden?

Loop even binnen of neem contact met ons op. Je kunt ook het contactformulier invullen, dan nemen wij zo snel mogelijk contact met jou op.

Vandaag bereikbaar van 09:00 tot 12:00

"*" geeft vereiste velden aan

Dit veld is bedoeld voor validatiedoeleinden en moet niet worden gewijzigd.