Vandaag bereikbaar van 09:00 tot 12:00
Koopwoningen

Ontdek jouw droomwoning

Omschrijving

Ruime, uitgebouwde gezinswoning met carport, oprit en zonnige tuin in rustige wijk

Welkom in deze verrassend ruime en lichte woning, gelegen in een rustige, groene wijk van het gezellige dorp Ospel (gemeente Nederweert). Deze goed onderhouden woning biedt alles wat je zoekt: veel leefruimte, een fijne tuin, eigen oprit met carport én een uitstekende ligging dichtbij voorzieningen en uitvalswegen.

Dankzij het energielabel A, 16 zonnepanelen, volledig isolatiepakket, een nieuwe Nefit cv-ketel (2023) én WTW-installatie (2023) is deze woning helemaal klaar voor de toekomst. Dat betekent comfortabel wonen én lage energielasten.

De woning is geschikt voor veel doelgroepen: gezinnen die op zoek zijn naar een kindvriendelijke woonomgeving, stellen die graag de ruimte hebben of mensen die een thuiswerkplek of hobbyruimte wensen. Dankzij de ruime indeling en mogelijkheden op de tweede verdieping kun je hier echt alle kanten op.

Indeling

Begane grond
Via de hal met toiletruimte en meterkast kom je in de ruime L-vormige woonkamer met sfeervolle erker aan de voorzijde. De open keuken vormt samen met de uitbouw het hart van het huis. Dankzij de lichtstraat en de grote schuifpui geniet je hier van een zee aan licht en ruimte. Er is voldoende plek voor een grote eettafel, een gezellige speelhoek of een fijne werkplek met uitzicht op de tuin.
Via de keuken heb je binnendoor toegang tot de praktische berging, voorzien van een grote schuifkastenwand en een keukenblokje.

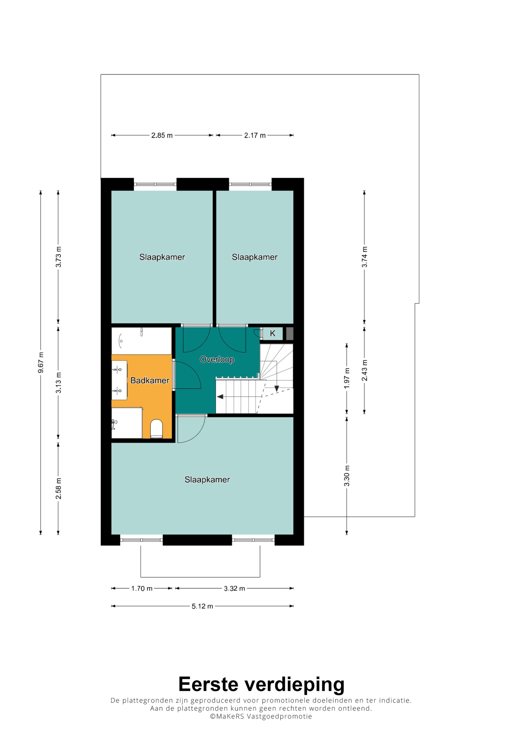
Eerste verdieping
Op de eerste verdieping bevinden zich drie ruime slaapkamers en een complete badkamer met ligbad, douche, dubbele wastafel en toilet.

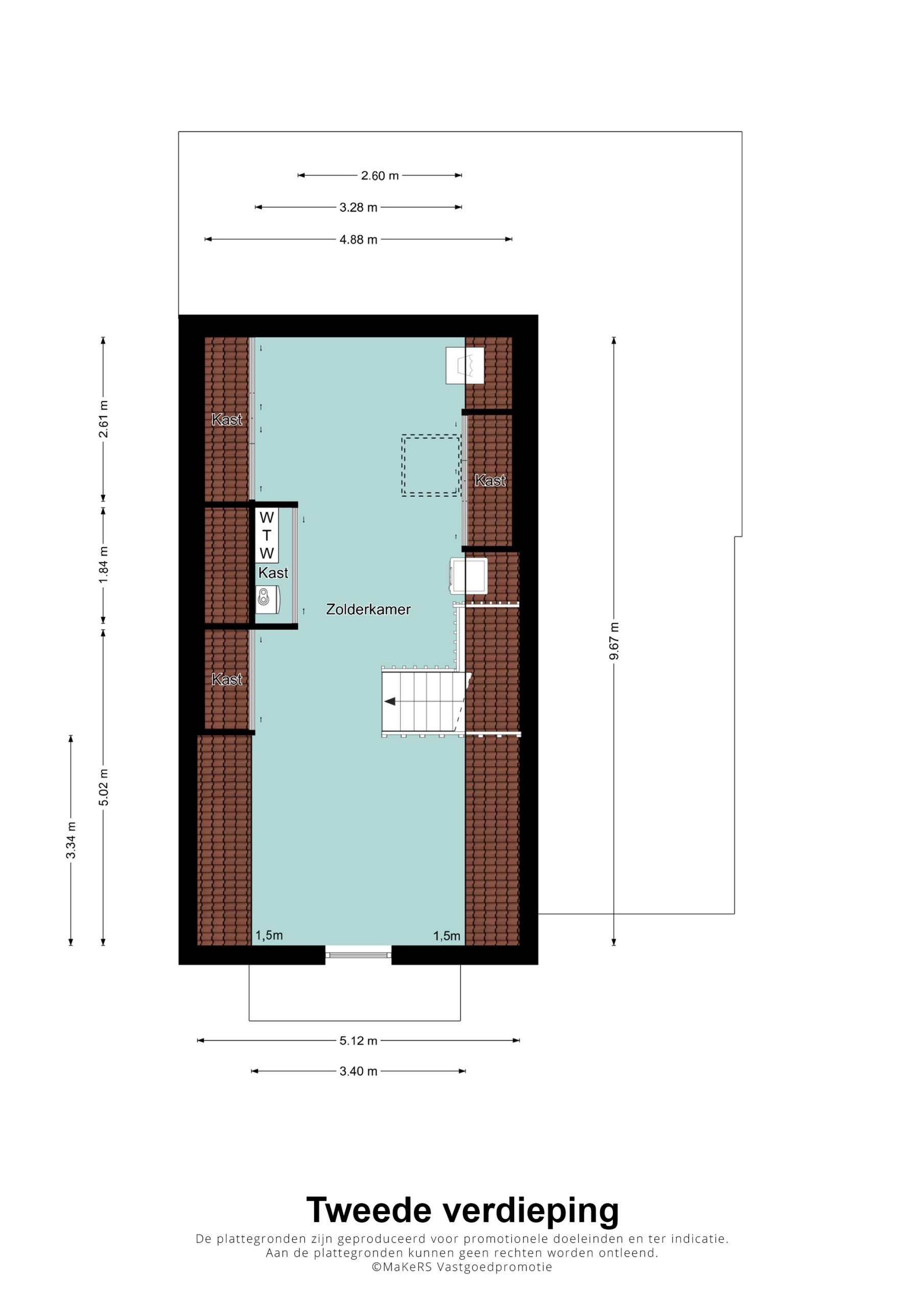
Tweede verdieping
De vaste trap brengt je naar de royale tweede verdieping met veel bergruimte in vaste kasten en aansluitingen voor witgoed. Dankzij het grote Velux dakraam en het raam in de kopgevel is het hier heerlijk licht. Deze verdieping biedt volop mogelijkheden: een vierde slaapkamer, thuiswerkplek, hobbyruimte of zelfs een combinatie daarvan.

Buitenruimte
De voor- en achtertuin zijn netjes en onderhoudsvriendelijk aangelegd. De achtertuin beschikt over een terras, gazon en borders, en is volledig omheind met een schutting. Via een poort is de tuin bereikbaar middels een vrije achterom. Dankzij de beschutte ligging biedt de tuin veel privacy en voldoende ruimte om te spelen of lekker buiten te zitten.

De oprit en carport bieden plek voor meerdere auto’s en zorgen voor optimaal gemak.

Ligging

Deze woning ligt in een rustige en groene wijk met een groot speelveld in de buurt – ideaal voor gezinnen met kinderen. Voorzieningen zoals een basisschool, supermarkt, tandarts en kapper zijn op loopafstand aanwezig.
De omgeving is rijk aan natuur en biedt volop mogelijkheden om te wandelen, fietsen en recreëren.

De bereikbaarheid is uitstekend:
– Binnen 10 minuten zit je op de A2 (Maastricht – Eindhoven).
– Steden als Helmond, Venlo en Roermond zijn goed bereikbaar.
– Het dichtstbijzijnde NS-station bevindt zich in Weert.

Pluspunten van deze woning
+ Energielabel A, 16 zonnepanelen en volledig geïsoleerd
+ Nieuwe Nefit cv-ketel en WTW installatie (beide 2023)
+ Uitgebouwde leefkeuken met lichtstraat en schuifpui
+ Vier slaapkamers mogelijk
+ Praktische berging met binnendoor toegang
+ Onderhoudsvriendelijke tuin met vrije achterom
+ Oprit en carport
+ Rustige, kindvriendelijke wijk met speelveld
+ Centrale ligging nabij A2 en voorzieningen

Een woning om direct verliefd op te worden!

Deze woning combineert ruimte, duurzaamheid en comfort en een fijne ligging. Kom zelf de sfeer proeven en ontdek de vele mogelijkheden. Maak snel een afspraak voor een bezichtiging!

Kenmerken

  • Woonoppervlakte 169 m2
  • Perceeloppervlakte 234 m2
  • Slaapkamers 4 kamers
  • Bouwjaar 2007
  • Energielabel A
Met koffie!

Kennismaken? Altijd gratis!

  • Wij gaan kijken of er een klik is, wel zo belangrijk!
  • Wij gaan kijken hoe we je het beste kunnen helpen.
  • Is alles duidelijk? Dan gaan wij voor jou aan de slag.

Vragen over onze mogelijkheden?

Loop even binnen of neem contact met ons op. Je kunt ook het contactformulier invullen, dan nemen wij zo snel mogelijk contact met jou op.

Vandaag bereikbaar van 09:00 tot 12:00

"*" geeft vereiste velden aan

Dit veld is bedoeld voor validatiedoeleinden en moet niet worden gewijzigd.